Нагрев заготовки в кузнечном горне
От кузнечной печки требуются два главных и единственных свойства: давать очень высокую температуру, вплоть до 1200 – 1500°С и возможность поддерживать нужную температуру в течение определенного времени. Иными словами, нам нужен сильный и ровный жар.
При какой температуре металлы поддаются ковке, то есть начинают быть пластичными? Это у всех металлов и сплавов по-разному. А вот визуальный признак того, что металлическая деталь нагрелась до нужной температуры, тоже общий – это оранжевый цвет детали.
Все металлы отвечают на нагревание изменением цвета от темно-красного до пронзительно-белого. Так вот оранжевый цвет – это сигнал, что можно начинать настоящую кузнечную работу по металлу.
Чертеж кузнечного горна.
Единственный металл, который ведет себя довольно подло и не меняет своего цвета при нагревании – это алюминий. Он не самый легкий металл для ковки и сварки в принципе, с алюминием нужно знать и применять множество специальных требований.
Так вот отсутствие оранжевого цвета в то время, как он уже нагрелся для ковки – значительный фактор, затрудняющий работы с этим капризным металлом и его сплавами. Ведь и перегреть нельзя. Недогреть – тоже никуда не годится.
Устройство промышленных вентиляторов
Изготовленные промышленным способом горны в основном снабжены центробежными (радиальными) вентиляторами для обдува воздухом. Они просты в устройстве и обеспечивают равномерный режим продувки.

Вентилятор для кузнечного горна такого типа часто имеет корпус, который выполнен в форме улитки. Его внутреннее устройство и принцип работы изображены на рисунке, где а) — это внешний вид, б) — устройство и расположение внутренних деталей.
Принцип работы «улитки» состоит в следующем:
- Внутри кожуха (3) корпуса вентилятора на оси размещено колесо вращения (1), снабженное лопастями (2).
- Форма лопастей и направление вращения колеса создают движение потока воздуха в трубу (4) в направлении зоны горения.
- Направление потока воздуха предусмотрено от расположенного в центральной части корпуса улитки отверстия к ее конечному витку, имеющему сужение. За счет этого напор воздуха усиливается.
Примером промышленного изделия является вентилятор распространенной марки VT1-2, выпускаемой под брендом «Blacksmith».

Он предназначен для обдува как стационарного, так и переносного горна с полностью открытой верхней частью. Диаметр для подсоединения трубы такого устройства равен 50,8 мм, питание осуществляется от сети в 220 В, мощность потребления — 150 Вт, рабочее колесо вращается со скоростью 3000/3600 об/мин.
Максимальный напор (давление) воздушной струи в подводящем отверстии равен 490 Па. Вентилятор имеет габариты 225х180х225 мм и вес 2.65 кг.
Корпус вентилятора выполнен путем литья и отличается повышенной прочностью. Работает аппарат практически бесшумно, легко подсоединяется к горну.
Самостоятельное изготовление
Перед тем как сделать горн, необходимо определиться с типов устройства. Самодельные горны могут быть двух видов:
Закрытый. Его конструкция оборудована специальной камерой, в которой заготовка разогревается до необходимой температуры
Следует обратить внимание, что в горнах закрытого типа можно работать с заготовками, размер которых не превышает размеров самой камеры.
Открытый. Засыпание топлива на колосники в нем проводится с ее верхней части
С нижней части происходит подача воздуха. Рабочая заготовка для ее нагрева помещается непосредственно на поверхность топлива. Благодаря этому можно использовать заготовки довольно больших размеров.
Читать также: Как делать сетку рабицу видео
Для начала необходимо взять пластину из стали и просверлить в ней отверстия. После этого ее можно вставить в центральную часть стола, который выступает в качестве основы горна.
Для того чтобы изготовить стол, рекомендуется взять металлическую пластину, толщина которой колеблется в пределах 3−5 мм. Следует учитывать габариты стола: 700 мм — высота стола. Столешница имеет размеры 80 Х 100 см.
Не исключена возможность того, что из уголка варится рама, в которую помещаются решетка колосника и огнеупорный кирпич. Для изготовления решетки можно использовать обычную старую сковороду из чугуна, в днище которой просверливаются отверстия. Следует учесть то, что при определении высоты стола необходимо ориентироваться на рост кузнеца.
Теперь можно приступить к монтажу механизма подачи воздуха. Есть возможность создания такого механизма, работающего от ножного привода.
Оптимальным вариантом создания механизма является использование электровентилятора из ненужного пылесоса. Его мощности хватит для того, чтобы подать поток воздуха необходимой силы. Нелишним будет оборудовать конструкция регулятором мощности.
Не исключена возможность использовать вместо пылесоса привод от ручной сирены.
После этого все части конструкции собираются в одно целое устройство. Теперь можно приступить к проведению первого испытательного запуска. Самодельный горн для ковки можно дополнять разного вида дополнительными приспособлениями, которые повышают показатель удобства работы с ним.
Классификация горнов
Перед тем как сделать кузнечный горн, необходимо ознакомиться с их классификацией, чтобы подобрать наиболее подходящий вариант конструкции. Классификация осуществляется по следующим критериям:
- по виду применяемого топлива,
- по типу конструкции,
- по размеру пода.
Виды горнов по типу применяемого топлива
По типу используемого топлива горны подразделяются на следующие виды:
- газовые,
- твердотопливные,
- на жидком топливе.
Кузнечный горн твердотопливный
Газовые горны имеют наиболее простую конструкцию, дешевы в ремонте и обслуживании. Они отличаются минимальным весом, что позволяет их изготавливать переносными или компактными.
Твердотопливные горны отличаются возможностью получения максимально высоких температур нагрева, относительно невысокой стоимостью стройматериалов для возведения и неприхотливостью в эксплуатации. Для их растопки допустимо использование следующих видов топлива:
- карбон или кокс, отличающийся высокой стоимостью и повышенной эффективностью (до 5 раз расход меньше, чем угля), в нём нет посторонних примесей, воспламеняется при температуре выше +450°С,
- каменный уголь, наиболее распространённое и эффективное топливо, при горении выделяет коксовый газ, поэтому при растопке необходимо ждать пока он весь выветрится, подходит для ковки различных декоративных элементов или деталей среднего качества,
- древесный уголь, имеет минимальную температуру возгорания, по сравнению с другими видами топлива, но быстро выгорает, отличается повышенным расходом, поэтому его эффективно использовать для растопки.
В качестве жидкого топлива допустимо использовать солярку, мазут или отработанное масло
При этом важно его предварительно очищать, так как наличие примесей станет причиной нестабильного пламени и выбросами в атмосферу вредных соединений
Это также является причиной сложности обслуживания оборудования по причине его частых засоров.
Классификация по конструктивным особенностям
Самодельный кузнечный горн по конструктивным особенностям может быть классифицирован следующим образом:
- по способу установки: переносной или стационарный,
- по конструкции топочной камеры: закрытого или открытого типа,
- по размещению наддува: с боковым или центральным соплом.
Виды горнов по размерам пода
По размерам пода горны бывают: малые, средние и крупные. Они определяются эффективностью работы установки и полностью зависят от интенсивности расхода топлива и режимов эксплуатации топливной камеры. Оптимальная эффективность скорости расхода топлива составляет от 1 до 1,5 м/с.
Производительность горна прямо пропорциональна величине напряжённости и площади пода. При этом минимальная напряжённость считается в пределах от 100 до 150 кг/м2·ч. Значения вне этого диапазона являются экономически невыгодными.
Принципиальная конструкция самодельного горна
Первый вопрос: какой горн делать – открытый или закрытый? Ответ будет зависеть от ваших планов – что вы собираетесь делать в своей кузнечной мастерской? Если это хобби в виде художественной ковки в малых количествах исключительно для дома и подарков родственникам, то вам будет вполне достаточно обзавестись открытым горном.
Если же вы планируете работать с металлами серьезно, чтобы, например, зарабатывать деньги, то мы посоветовали бы соорудить кузнечный горн своими руками закрытого типа.
Вот какие детали составляют грамотно собранный горн:
- рама на стойках для опоры, все должно быть сделано из стали;
- под – дно или нижняя часть стенки горна;
- заслонка шиберного типа со специальными отверстиями для ускорения нагревания металла и экономии топлива;
- вентилятор;
- труба для отвода дыма
- футеровки – тепловая защита печки в виде шамотных кирпичей;
- рекуператор – специальное устройство для возврата выделяющегося тепла в виде печных газов и, таким образом, эффективного использования ресурсов.
Индивидуальная конструкция
Стационарные модели горна следует изготавливать с учетом антропометрических данных мастера. Это необходимо для обеспечения максимального комфорта во время ковки, ведь раскаленный кусок железа весом в несколько килограмм представляет серьезную опасность и для мастера и окружающих. Самое главное в процессе работы — обеспечить себе максимальную безопасность и комфорт.
Чтобы правильно определить размеры рабочего места, необходима помощь второго лица. Итак, высота измеряется от пола до локтевого сгиба мастера, рука которого находится в расслабленном положении, а ноги стоят на ширине плеч. К полученной цифре нужно прибавить еще 5 см, что и станет оптимальной высотой для рабочего места.

Форма стола лучше всего квадратная для работы одного мастера, для деятельности с помощником можно сделать и прямоугольную. В случае квадратной формы, длина стороны определяется путем определения диагонали. Для этого помощнику нужно замерить длину от живота мастера до конца самых больших клещей в вытянутой руке. К полученному числу прибавляется еще 10 см и получается половина диагонали. Далее, по желанию можно просто умножить полученный результат на 1,414 или определить длину всей диагонали и решить уравнение из школьной программы C2 = a2+a2, где С — полученная диагональ, а — сторона стола.
Устройство горна
Классический производственный горн устроен следующим образом, см. рис справа:
Устройство кузнечного горна
- стол горна из огнеупорного материала;
- топливник (очаг) с колосниковой решеткой;
- воздушная камера;
- воздушный дренаж;
- подающий воздуховод;
- воздушный вентиль;
- камера (шатер) горна;
- окно для подачи длинномерных заготовок;
- зонт горна;
- дымоход (газоотвод);
- съемное горнило;
- закалочная ванна (бадья, лохань);
- газовоздушная камера.
Принцип действия горна
Чтобы самому сделать горн и успешно им пользоваться, разберемся, как работает горн, что в нем к чему и что в нем можно удешевить и упростить в условиях домашнего использования без ухудшения качества обработки металла. В основе работы горна лежит химическая реакция горения углерода 2C + O2 = 2CO2 + 188,1 ккал. По ее энерговыходу (94,05 ккал/моль, т.е. 12 г С, полностью сгорев, дадут 94,05 ккал тепла) видно, что углерод – весьма сильный восстановитель, т.е. жадно соединяется с кислородом.
Это свойство углерода с незапамятных времен используется в металлургии для выплавки железа и других металлов: их руды часто представляют собой соответствующие окислы или их производные соединения. Углерод бесцеремонно обирает себе кислород, и обездоленному металлу не остается ничего иного, кроме как выделиться в свободном виде.
В кузнечном горне восстановительная способность углерода также используется отчасти, как препятствующая окислению заготовки. Попросту, чтобы металл не сгорел. Но не менее здесь важна высокая теплотворная способность углерода: поддувая в массу топлива достаточно воздуха, чтобы углероду его хватило, можно сжечь его довольно быстро, а большое количество выделившегося тепла и температуру разовьет высокую.
Дутье в горн регулируют таким образом, чтобы кислорода топливу чуть-чуть не хватало, это полностью предотвратит окисление металла. Однако, если заготовку в горне передержать, то пойдет науглероживание: металл, особенно сталь, станет, как говорят, пересушенным – чрезмерно, непропорционально возрастанию твердости, хрупким. Пример совершенно пересушенного железа – чугун. В металлургии, чтобы получить из него конструкционную сталь, расплавленный чугун подвергают переделу: в конверторе или иным способом вводят в него кислород, отнимающий лишний углерод.
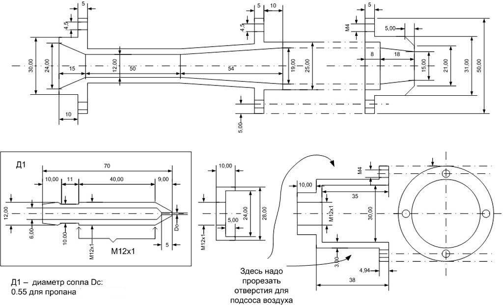
Газовые горелки
И под конец дадим чертежи нескольких горелок для газовых горнов. Для художественной ковки они вполне подойдут, а, что ни говори, из кузнечных работ она самая востребованная. Все эти горелки – инжекционные прямоточные. Куда более эффективные и универсальные вихревые слишком сложны для самостоятельного изготовления.
Первая, на рис., самая сложная. Чтобы ее сделать, нужно быть токарем-фрезеровщиком не ниже 5 реального разряда. Зато работает на любом газе (кроме ацетилена, см. ниже!), бензовоздушной смеси и дает очень мощный наддув: может продуть и большой стационарный горн, описанный выше.

чертежи газовых горелок для кузнечного горна
Следующая (см. рис.) попроще и содержит меньше деталей, хотя и здесь нужно точно точить пологие конусы. Дует тоже отлично, но работает только на пропане. Под бутан сопло требуется совсем узкое, да бутан и применяется мало.

Обтачивать вчистую внешнюю поверхность инжектора Д1 и сверлить сопло нужно в один установ. Сопло сверлится твердосплавным сверлом и проходится вчистую разверткой. Это и есть главный недостаток конструкции: требуется мелкий точный инструмент, не везде и не всегда доступный.
Ниже на рис. две горелки попроще. Слева – точеная универсальная под бытовой газ или пропан. Продуть может максимум небольшой передвижной горн, но выточить детали под силу токарю-середняку. Нужно только владеть технологией посадки деталей в горячий натяг. Которая, впрочем, не сложна.

Справа – горелка-самоделка. Большинство деталей, включая ниппель – от велосипеда. Из токарки требуется только обточить в размер самую малую звездочку от велосипедной КПП. Эта горелка всеядна: пропан, бутан, бытовой газовый коктейль, бензовоздух. Но греть ею можно только малые кирпичные замкнутые горны, показанные в начале.
Самостоятельное изготовление
Мини-горн
Самый небольшой горн, который только можно придумать – это мини-горн. Для начинающего кузнеца – это оптимальный вариант, предназначенный для использования только на открытом воздухе. Принципы построения следующие:
Чертеж мини-горна
- В качестве основного строительного материал можно использовать 6–8 кирпичей. Соорудив из них подставку, можно двигаться дальше.
- Сооружение колосниковой решетки можно осуществить с помощью обрезков металлических труб и фрагмента стальной полосы, толщина которой должна быть не менее 4–6 мм.
- Топить такой горн можно либо углем, либо коксом. Для розжига и дутья использую обычную паяльную лампу. Она обеспечивает и подачу тепла, и непрерывность процесса.
Использование мини-горна в помещении запрещено в силу отсутствия у конструкции дымохода.
Переносной горн
Сооружение передвижного горна можно осуществить, используя такую кухонную утварь, как гусятница. В качестве системы наддува можно использовать вентилятор от ручной сирены или любое другое подходящее устройство.
У переносного горна есть определенные недостатки:
- конструкция его неразборная, поэтому сложно избавиться от нагара;
- не позволяет создать очень высокие температуры, максимально возможный показатель – 900 ОС;
- эксплуатация обходится довольно дорого: в роли топлива можно использовать только кокс или древесный уголь.
Несмотря на это, такой вид угольного горна имеет гораздо больше возможностей, чем самодельная конструкция из кирпичей, описанная выше. Связано это с тем, что пространство для работы у переносной конструкции открыто сверху и значительно больше.
Стационарный горн
Данная конструкция является самой сложной, с точки зрения построения. Опытные мастера изготовлением горна занимаются самостоятельно, учитывая собственные антропометрические данные. Его эргономика должна быть отточена до мельчайших деталей: работы, производимые здесь, зачастую очень травмоопасные.
Итак, при строительстве стационарного горна необходимо исходить из собственных физических данных. Для этого необходимо измерить:
- Высоту стола. Встать ровно, ноги находятся на ширине плеч. Правую руку необходимо сначала опустить, а затем согнуть в локте. Это и будет высота стола, к которой необходимо добавить 5–7 см.
- Половину диагонали стола. В ту же руку необходимо взять большие клещи и измерить расстояние от их губок до живота. Прибавив к полученному результату 10–12 см, можно получить искомый результат.
- Длину стороны квадратного стола. Для этого полученный в п.2 результат следует умножить на 1,4.
Кузнечный горн — это открытая или закрытая печь, используемая в кузнечном деле для нагревания металла
Чтобы изготовить стационарный горн своими руками, понадобятся такие материалы:
- жаропрочная сталь с толщиной листа не менее 4 мм;
- шамотный кирпич;
- металлопрокат, из которого впоследствии следует монтировать раму горна;
- стальной дымоход для осуществления процесса отведения газов, образующихся в процессе горения;
- огнеупорная замазка, которую необходимо обязательно использовать для заделки щелей;
- сталь для футеровки с внешней стороны.
Материалы для изготовления кузнечного горна
Правила изготовления стационарной конструкции
Так как горн – стационарный агрегат, его нахождение должно быть четко определено. Обязательно необходим доступ к одной из стен, потому что кузнечный горн не должен быть независимым. Наличие стены позволит более надежно обустроить дымоходы и установить вентилятор. В данной конструкции может использоваться самодельная фурма.
Опорная рама для кузнечного горна
Строительство горна следует начать с изготовления опорной рамы. Ее варят из металлической трубы. Обустройство верхней части производят при помощи огнеупорного кирпича. Это сделает конструкцию долговечной и позволит использовать печь более интенсивно.
Каналы, предусмотренные для вентиляции и дымохода, по периметру следует отделать стальными уголками. Металл еще используют при сооружении футеровки и заслонки печи. Листы, использующиеся в отделке, должны иметь ребро жесткости.
Стол горна должен иметь горновое гнездо, оптимальная глубина которого – 10 см. Под ним – зольная камера, в которую подается воздух. Размер стола не регламентирован, но лучше, если он сконструирован с учетом данных мастера.
Из стали толщиной 2 мм следует свернуть трубу квадратной формы. Это будет приемник для золы. В одной из стенок следует сделать отверстие, в которое позже будет вставлена труба для подачи воздуха. Ее можно осуществить при помощи пылесоса.
Самостоятельное изготовление
Перед тем как сделать горн, необходимо определиться с типов устройства. Самодельные горны могут быть двух видов:
Закрытый. Его конструкция оборудована специальной камерой, в которой заготовка разогревается до необходимой температуры
Следует обратить внимание, что в горнах закрытого типа можно работать с заготовками, размер которых не превышает размеров самой камеры.
Открытый. Засыпание топлива на колосники в нем проводится с ее верхней части
С нижней части происходит подача воздуха. Рабочая заготовка для ее нагрева помещается непосредственно на поверхность топлива. Благодаря этому можно использовать заготовки довольно больших размеров.
Для начала необходимо взять пластину из стали и просверлить в ней отверстия. После этого ее можно вставить в центральную часть стола, который выступает в качестве основы горна.
Для того чтобы изготовить стол, рекомендуется взять металлическую пластину, толщина которой колеблется в пределах 3−5 мм. Следует учитывать габариты стола: 700 мм — высота стола. Столешница имеет размеры 80 Х 100 см.
Не исключена возможность того, что из уголка варится рама, в которую помещаются решетка колосника и огнеупорный кирпич. Для изготовления решетки можно использовать обычную старую сковороду из чугуна, в днище которой просверливаются отверстия. Следует учесть то, что при определении высоты стола необходимо ориентироваться на рост кузнеца.
Теперь можно приступить к монтажу механизма подачи воздуха. Есть возможность создания такого механизма, работающего от ножного привода.
Оптимальным вариантом создания механизма является использование электровентилятора из ненужного пылесоса. Его мощности хватит для того, чтобы подать поток воздуха необходимой силы. Нелишним будет оборудовать конструкция регулятором мощности.
Не исключена возможность использовать вместо пылесоса привод от ручной сирены.
После этого все части конструкции собираются в одно целое устройство. Теперь можно приступить к проведению первого испытательного запуска. Самодельный горн для ковки можно дополнять разного вида дополнительными приспособлениями, которые повышают показатель удобства работы с ним.
Изготовление твердотопливного горна
Горение твердого топлива само по себе не может дать нужную температуру, поэтому для ее повышения такие конструкции должны иметь дополнительно систему подачи воздуха. Устройство самой печи так же будет зависеть от личных предпочтений и размеров обрабатываемых заготовок.
Открытый горн на твердом топливе
В старых мастерских ранее для этого использовали меха, качая которые создавали мощную струю воздуха, подающуюся в очаг.
Как собрать такой твердотопливный кузнечный горн?
Самая простая конструкция — открытая сверху печь, установленная на улице. Ее преимущество в том, что не нужно заморачиваться обустройством мощной вентиляции.
- Изначально заливается бетонное основание, желательно с армированием.
- На нем изначально собирают основание, используя обычный стеновой кирпич. Такой стол может быть любой удобной высоты. При этом нужно в одной из стенок оставить отверстие. Так называемое поддувало. В итоге должен получиться квадрат или прямоугольник.
- Следующий шаг сборка собственно нижней поверхности печи (под). Ее собирают из огнеупорного кирпича, который укладывают на основания, например, со стальных уголков.
- По центру будущего очага оставляют отверстие под колосник. Для изготовления этого элемента используют термостойкий материал. Отлично подойдет чугунная плита от старой печи. В ней нужно просверлить предварительно отверстия.
- Когда колосник установлен, складывают стенки с того же огнеупорного кирпича.
- В одной из стен делают отверстие под систему подачи воздуха. Его можно высверлить, используя дрель и алмазную коронку. Или же заранее оставить при кладке.
- Если собирают верх, то придется сложить и дымоход, иначе в закрытой печи, да еще и в помещении, не будет тяги.
Когда работы окончены, монтируют систему подачи воздуха. Здесь можно установить электрический вентилятор в трубе. Или же сконструировать кузнечные меха, как показано на видео:
Такое простейшее устройство вполне подойдет для ковки своими руками. Несмотря на примитивную конструкцию, такими печами пользовались на протяжении сотен лет, хотя имеются и недостатки.
Главный недостаток — это сложности в контролировании процесса и неравномерности нагревания заготовок. Также довольно низкое полезное действие в сравнении с газом и более высокий расход топлива.
Наковальня — верная напарница горна
Поэтому и располагаться она должна близко от него. Самой лучшей является двурогая ее разновидность. Горизонтальная площадка называется «лицом», поэтому его нужно беречь от всяких изъянов — только идеально отшлифованная поверхность гарантирует качество работы.
С одной стороны у наковальни расположен рог в виде конуса, здесь сваривают и раскатывают кольца. Недалеко от основания конуса находится круглое отверстие (15 мм), с помощью которого придается круглая форма изделиям. С противоположной стороны, где расположен «подбородок» нашего лица, гнут замкнутые прямоугольные детали. Тут тоже присутствует отверстие, но квадратное, его размеры — 30х30 мм.

Внизу у наковальни присутствуют 4 лапы, которые предназначены для ее крепления к основанию. Делается это скобами. Нужен этому инструменту и особый стул, изготовленный из дуба или березы, диаметр его должен быть порядка 600 мм. Для того, чтобы сделать подобие фундамента для наковальни, чурбак нужно углубить в землю на 50 мм, еще глубже — лучше. Это позволит избежать вибрации инструмента.
Строим газовый горн
Прежде, чем начать сооружать газовый кузнечный горн своими руками, нужно определить параметры пода – его площади.
Для этого существует хитрая формула:
N = H × F
N – производительность горна, которая зависит от напряженности H и площади пода F. Высчитано, что оптимальной поддержки необходимой температуры в горне достаточно скорости подачи газа в промежутке от 1-го до 1,5 м/сек.
Схема газовой горелки для горна.
Вам известны площадь вашей мастерской и примерное количество кузнечных деталей в килограммах, которое вы планируете производить. С этими данными вы выводите напряженность пода с максимально допустимой верхней границей в 150 кг/м².
Необходимые материалы, которые нужно иметь, чтобы приступить к работе:
- кирпич огнеупорный типа динас или шамот;
- пластины толщиной не меньше 5-ти мм из жаростойкой стали;
- стальной профиль для стоек, рамы и заслонки горна;
- труба для дымохода и вентиляционного канала из стали;
- шпатлевка для заделки щелей между кирпичами с жаростойкими свойствами;
- листовой металл или дополнительный слой огнеупорных кирпичей для футеровки с внешней стороны;
- горелки от двухконтурных котлов большой мощности;
- вентилятор;
Газовые кузнечные горны тоже могут быть открытыми. С ним все намного проще, достаточно будет устроить колосники с подачей воздуха для большей эффективности нагрева. Вещества сгорания выводятся в таком случае вентилятором из теплостойкого металла.
Опорную раму лучше располагать вплотную к одной из стен вашей мастерской. Выбор стены нужно делать с учетом того, что будет нужен дымоход и вентиляционная труба, так что смежные стенки, если таковые есть, лучше не использовать.
Важнейшим условием является точное соблюдение правил пожарной безопасности, которое заключается в использовании только огнеупорные и жаростойкие материалы. Не помешает проверить, из чего сделаны стены вашей мастерской
С большой осторожностью относимся к разного рода гипсокартонным конструкциям
Стойки и саму раму лучше сваривать из низколегированной стали по чертежам, которые можно скачать в Интернете. Низколегированная сталь прочна, легкая и, самое главное, устойчива к специфической коррозии высокотемпературного режима. Внешняя футеровка должна быть продумана заранее, чтобы в опорной раме сразу проделать отверстия для ее крепления.
Теперь об огнеупорных кирпичах и кладке
Важно купить настоящие сертифицированные кирпичи типа шамот, изготовленные по ГОСТу 390-79. Если вы приобретете кирпич не по стандарту, вы рискуете тем, что обычные кирпичи начнут у вас плавиться уже при температуре 1000°С. Настоящий шамотный кирпич кремового цвета с мелкими порами в малых количествах, они намного тяжелее обычных керамических, вес одного шамотного кирпича больших габаритов достигает 5-ти кг
Самые подходящие марки шамота – ШБ, ША и ШПД
Настоящий шамотный кирпич кремового цвета с мелкими порами в малых количествах, они намного тяжелее обычных керамических, вес одного шамотного кирпича больших габаритов достигает 5-ти кг. Самые подходящие марки шамота – ШБ, ША и ШПД.
Устройство кузнечного горна.
Второй тип огнеупорных кирпичей – динас. Эти кирпичи дороже, зато устойчивее к высоким температурам: они выдерживают режим с уровнем 1800°С. Они светлее шамотных кирпичей из-за высокой доли в своем составе кремниевых солей.
Если у вас есть возможность, лучше выкладывать горн динасовым кирпичом: кузнечные горны из огнеупорного динасового кирпича долговечнее и выдерживают самые жесткие температурные режимы.
Кирпичи укладывать с раствором из огнеупорной глины с добавкой порошка из шамота и динаса в четкой пропорции 60:40. Дымоход и вентилятор по периметру обрабатывать металлическими уголками.
Важнейший финальный этап – просушка всей конструкции. После нее нужно проверить, как работают вентиляторы для горна кузнечного. И только затем можно будет производить тестовое включение.
Нюансы самостоятельного изготовления
Как можно изготовить самодельный кузнечный горн? Для этого вам потребуются чертежи подходящей вам модели греющего устройства и помещение, где оборудование будет располагаться.
Горны отличаются по типам камер разогрева.
- Закрытые камеры разогрева. Они наиболее эффективные, поскольку минимизируют затраты топлива, обеспечивая отличный нагрев заготовок. Но сами заготовки ограничены по своим размерам, поскольку зависят от габаритов камеры.
- Открытые камеры разогрева. Такая конструкция предусматривает, что топлива насыпают на колосниковую решетку, а снизу обеспечивается подача воздуха. Заготовка из металла укладывается на горючее. Хотя расход топлива несколько больше, зато заготовки могут использоваться более крупные.
Как сделать кузнечный горн, дабы получить возможность ковать железо в домашних условиях? Рассмотрим каждый этап строительства конструкции.
Фото кузнечного горна сделанного своими руками
- Стол. Стол является основой самодельного горна. Чертежи показывают, что соорудить этот элемент достаточно просто. Обычно высота стола до 80 сантиметров, а для крышки используют металл толщиной 5 миллиметров. Рабочая поверхность стало может иметь различные размеры. Все зависит от того, с какими металлическими заготовками вы собираетесь работать. Другой вариант строительства стола — использовать уголки для создания рамы. Внутрь нее укладывается кирпич и колосниковая решетка. Решетку следует расположить по центру.
- Решетка монтируется в отверстие, выполненное в столе. Затем со всех сторон закрывается огнеупорный кирпич. Высоту стола подбирайте непосредственно под свой рост, чтобы конструкция находилась на уровне пояса.
- Поддув. Чтобы устройство горна работало эффективно, ему требуется качественный поддув воздуха. За счет кислорода повышается температура, металл начинает плавиться. В традиционных конструкциях горна использовали поддув с ножным приводом. Но сейчас у всех есть возможность использовать электричество, потому оптимальное решение — электровентилятор или старый пылесос. Пылесос подает воздух нужной силы. При наличии регулятора частоты оборотов вы получите шикарный самодельный горн.
- Теперь все элементы конструкции собираются в единую систему — самодельный металлообрабатывающий горн.
- На колосниковую решетку засыпьте необходимое количество топлива. Сначала воспользуйтесь щепками и средними дровами, после чего наступает черед кокса. Включите поддув, разместите над топливом вашу заготовку. Сверху на железо допускается подсыпка кокса в небольшом количестве. Если кокса нет или есть большие запасы отводов от древесины, вполне можете использовать их.
Это модель простейшего кузнечного горна. Если есть желание или возможность, вы можете существенно усовершенствовать собственное оборудование для кузнечного дела, приблизив его к особенностям промышленного горна.
Что имеет промышленный горн
Профессиональные кузнецы используют промышленные горны, которые отличаются повышенной эффективностью и высокой надежностью. Изготовить самостоятельно промышленный кузнечный горн практически невозможно. Но как-то приблизить самодельную модель к идеалу вполне реально.
Чем отличается промышленный горн, и какие компоненты входят в состав его конструкции?
- Сопло подачи воздуха. Самодельные горны вместо сопла используют шланг старого пылесоса, подающего воздух;
- Огнеупорный кирпич. Тут полная аналогия домашнего и промышленного устройства;
- Колосниковая решетка. Большинство самодельных горнов предусматривают использование колосниковой решетки. Многие делают ее из старых сковородок с толстыми стенками;
- Гнездо для твердого топлива. Это гнездо позволяет удобно загружать необходимо количество твердого топлива. Оснастить подобным элементом самодельный горн проблем не составит;
- Кирпичи каркаса. Это уже стационарные устройства, которые закладываются кирпичами. Для простого горна подобные элементы являются уже лишними;
- Вентилятор подачи воздуха. Мы рассмотрели пример с обычным пылесосом, который неплохо справляется с задачей по нагнетанию воздуха. Если хотите, можете воспользоваться вентиляторами или другими подобными устройствами;
- Металлический каркас. На его основе удерживается стол;
- Воздушная камера. В самодельных кузнечных горнах его нет, но если вам нужно профессиональное оборудование, оснастить устройство камерой будет не лишним;
- Зольник. Если вы собираетесь регулярно использовать в домашних условиях ваш горн, советуем оснастить его зольником. Так будет проще ухаживать за устройством;
- Кожух горна.




































