В какую цену обойдется самоделка?
Если посмотреть готовые предложения о покупке мопедов из бензопилы, то можно увидеть, как варьируются цены. Кто-то продает мопед за 5 тысяч рублей, а кто-то просит и все 15.
Если отметить все расходы, то львиная доля придется на бензопилу. Модель «Урал 2Т» можно приобрести за 5 т.р., к этой цифре прибавляем еще 4-5 т.р. на дополнительные приспособления.
Итого, получаем сумму в 9-10 т.р. Расходы на инструмент исключаем, так как у человека, желающего самостоятельно сделать себе мопед из бензопилы, инструмент всегда под рукой «априори».
Сумма в 10 т.р. покажется мизерной, если присмотреться к ценнику фирменных мотоциклов, мопедов и мотороллеров.
Генератор
Для изготовления подходит бензопила с 2-тактным двигателем мощностью 2-3 л. с. В качестве электрогенератора используют часто электродвигатели от старых стиральных машин. Сочетание этих устройств позволяет получать на выходе электроток напряжением 220 В. Мощности такого бензогенератора достаточно для освещения, питания электрических приборов и инструментов, бытовой техники.
Порядок операций:
- Изготавливают кронштейн и крепят к нему электродвигатель. Устанавливают полученную конструкцию на внешнем конце шины бензопилы. При этом обеспечивают:
- перпендикулярность оси электродвигателя к плоскости шины;
- расположение шкивов обоих устройств в одной плоскости.
- Выходные валы двигателей снабжают шкивами подходящего диаметра.
- Одевают на шкивы ременную передачу.
- Изготавливают устройство для регулирования оборотов мотора мотопилы. Используют болт, который с помощью хомута крепят к ручке последней. Закручивание его приводит к увеличению количества оборотов, выкручивание — к уменьшению.
- Внешнюю пусковую обмотку электродвигателя снабжают 2 конденсаторами, которые рассчитаны на напряжение 400-450 В и имеют общую емкость 10 мкФ. Их подсоединение — параллельное.
Лебедка
Механизм предназначен для горизонтального перемещения или подъема грузов на высоту. Не зависит от наличия электроэнергии, может использоваться на природе, в туристических походах.
Обязательное условие при этом — мощность двигателя лебедки из бензопилы своими руками не должна быть меньше 2,5 кВт.
Важным элементом устройства является барабан — его изготавливают самостоятельно или используют от ручной лебедки. Кроме того, понадобится:
- редуктор для уменьшения оборотов мотопилы;
- металлические трубы или профильный прокат, рычаг, кулачковые зажимы, хомуты.
Порядок изготовления лебедки:
- Из труб изготавливают жесткую раму. Используют сварку.
- Крепят к ней мотор бензопилы. К нему хомутами подсоединяют редуктор, а к выходному валу последнего — барабан.
- Устанавливают рычаг, оборудованный кулачковыми зажимами, связанными с валом барабана. Этот элемент управления позволяет управлять рабочим процессом: при перемещении рычага в одну сторону включается вращение барабана, в другую — происходит его остановка.
- Изготавливают якорь, которым лебедка будет закрепляться в почве или цепляться за какой-либо неподвижный предмет. Используют заостренные уголки, которые приваривают или присоединяют шарнирами к раме.
- Наматывают на барабан трос, свободный конец которого снабжают крюком. Его применяют для захвата, присоединения к грузу, который нужно перемещать.
Как выполнить лебедку и пилораму из бензопилы своими руками
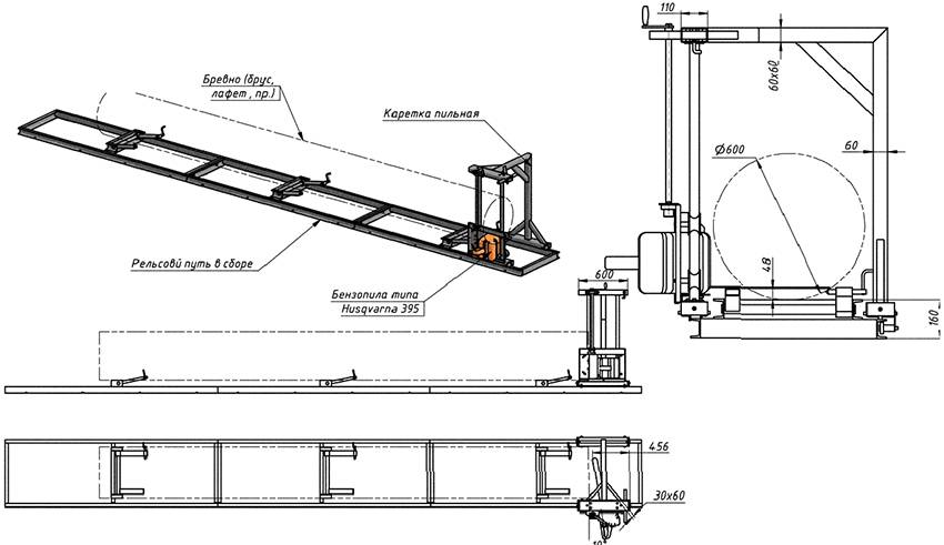
Самоделки из «Урала» часто помогают и в строительстве. Так, при возведении зданий из цельного леса приходится распускать бревна на брус. Пилорама из бензопилы «Урал» дает возможность выполнить это действие максимально быстро, аккуратно, сохраняя точность реза. Главное преимущество – отсутствие необходимости выполнять какие-либо сложные переделки. Приспособление просто требуется надежно закрепить в самодельной раме, которая может быть изготовлена из металлических уголков или профильных труб. Бревно для обработки затем уже укладывается на подготовленные направляющие.

Схема изготовления пилорамы из бензопилы своими руками
Создавать чертежи пилорамы из бензопилы своими руками не придется, потому как в сети доступно большое количество идей, подходящих даже для человека без опыта.
Безопасность использования конструкции обеспечивается тем, что не нужно самостоятельно передвигать бревно. Для этой цели служит каретка с пилой, которая, в зависимости от толщины бревна, закрепляется на необходимой высоте. После включения рама перемещается точно, а срез остается аккуратным и получается ровным. Можно эксплуатировать устройство не только для цельного бруса, но и для распиловки доски, с целью заготовки дров.
Самодельная лебедка также станет хорошим помощником при строительстве, потому как с ее помощью получится легко поднимать грузы на высоту, перемещать спиленное дерево. Кроме того, применяя лебедку, удастся вытащить застрявшую машину или вытянуть из воды на берег катер. Эффективность работы будет зависеть от передаточного числа редуктора, в некоторых моделях показатель может достигать 1,5 т.

Пилорама из бензопилы позволит легко и быстро превратить бревна в брус
Чтобы прибором было удобно пользоваться, потребуется выполнить прочную раму, используя сварочные работы. На раме следует прочно закрепить мотор, редуктор и барабан с системой торможения. Для фиксации рамы на корпусе следует предусмотреть отверстия и проушины, через которые можно будет установить прибор на любую поверхность.
Что можно сделать из бензопилы Дружба
Техника, которую можно сделать своими руками из имеет большой список. Все ограничивается только фантазией мастера. В интернете опубликовано много видео с подробным описанием пошагового изготовления самоделок. В рамках статьи мы собрали только самые лучшие видео, на основании которых можно без проблем сделать нужную вам технику. Самой простой самоделкой считается лодочный мотор, а сложной – вездеход, мотособака, газонокосилка. Приведем примеры самоделок от простого к сложному.
Нож из шины
Эта поделка не имеет прямого отношения к бензопиле Дружба 4, однако пользуется спросом, т.к. нож из шины бензопилы Дружбы очень хорошо держит заточку, устойчив к коррозии. Для изготовления потребуется только сама шины от пилы. Цена на вторичном рынке варьируется от 200 до 500 рублей. Для реализации поделки предлагаем посмотреть интересное видео, автор которого подробно описывает, как сделать кухонный нож из шины. Особенность видео в том, что автор показывает простой метод проделывания отверстия в стали рукоятки, без сверления.
Велосипед
Чтобы сделать велосипед с двигателем от бензопилы Дружба понадобится сама пила и велосипед, желательно Кама с багажником. Процесс изготовления самоделки:
- Закрепить двигатель на раме велосипеда.
- Проложить тросик газа и курок на руль.
- Соединить цепью приводное колесо велосипеда и шкив на двигателе пилы.
Косилка (газонокосилка)
Чтобы сделать косилку, опять потребуется сама бензопила Дружба 4, маленькие колеса, нож и металлопрокат для изготовления корпуса и защитного кожуха. Нож подойдет либо от мотокосы, либо от газонокосилки, все зависит от того, какой рабочий диаметр будет заложен проектом. Представляем вашему вниманию на обзор видео, автор которого сделал косилку из бензопилы Урал (существенного отличия от Дружбы нет, поэтому и рекомендуем к просмотру).
Лодочный мотор
Переделать бензопилу в лодочный мотор уже будет гораздо сложнее, нежели в велосипед или косилку. Изделие будет нацелено на контакт с водой, а с ней, как известно нужно быть предельно внимательным. По рекомендациям многих мастеров, привод и вал лучше использовать от старого лодочного мотора. Двигатель от Дружбы 4. Останется только соединить их воедино. Для примера рекомендуем посмотреть интересное видео, автор которого сделал лодочный мотор из бензопилы Дружба 2. Автор демонстрирует работу пилы в бочке с водой.
Пилорама
Чтобы сделать пилораму из бензопилы, достаточно изготовить приспособление для продольного роспуска бревна. Ее задача – удерживать шину пилы в ровной плоскости относительно бревна. Для наглядного представления рекомендуем посмотреть видео демонстрации приспособы в работе. Из видео становится ясно, что для самоделки нужен минимум материалов – обычный металлопрокат (профильная труба).
Вездеход
Переделать бензопилу в вездеход уже очень сложно, но все-таки возможно. В интернете много видео, авторы которых реализовали данную идею. Вся суть заключается в том, что нужно изготовить свое шасси: раму, колеса, привод и т.д., а в качестве двигателя будет использоваться бензопила Дружба 4. Единственная рекомендация – это использовать вместо колес обычные камеры, связанные по периметру, такие колеса существенно легче тех, что с шинами, соответственно мотору будет гораздо проще во время движения.
На обзор предлагаем посмотреть интересное видео о самоделке вездеходе из бензопилы Дружба 4. В самоделке используется самокат, гусянка, поэтому это скорей всего снегоход, нежели вездеход.
Мотособака (мотобуксиробщик)
Изготовление мотособаки из бензопилы Дружба 4, как и в случае с вездеходом также сводится к первоначальной разработке шасси: рама, гусеница, управление и т.д. А двигатель пилы это всего лишь движущая сила.
Предлагаем посмотреть интересное видео, автор которого показывает, как сделать мотособаку почти из подручных материалов. Например, зацепы гусеницы изготовлены из обычных пластиковых труб, а весь каркас мотобуксировщика сварен из обычной профильной трубы маленького диаметра.
Приспособление для продольной распиловки
Иногда во время строительства или ремонта деревянных сооружений требуется распиловка древесины. Приобрести такое оборудование для домашних работ дорого, поэтому его можно собрать самостоятельно. Приспособление для продольной распилки бревен бензопилой поможет заготовить большое количество досок и пиломатериалов.
Прежде чем приступить к сборке инструмента, нужно подготовить чертежи и внимательно изучить их. Вся конструкция состоит из простой рамки и направляющей. Чтобы распил получался ровным, направляющую фиксируют с обеих сторон основания. Процесс изготовления:
Из квадратной трубы изготавливают каркас. Поперечное сечение — 20×20 мм. Можно воспользоваться простой детской партой. Размер зажимной части должен быть от 50 до 60 см. Ее располагают так, чтобы торец каждой детали сформировал основу для следующего механического узла (поперечины). Чтобы поперечина надежно держалась, ее приваривают к конструкции. Для установки болтовых стяжек в поперечине проделывают отверстия электродрелью. Для крепления шины в центральной точке поперечины оставляют маленький выступ. Подобные крепления устанавливают в верхней части конструкции. При этом ширина болтовых фиксаторов должна быть больше, чем высота шины. Опорную раму (шириной на 10 см меньше длины) делают прямоугольной формы. С двух сторон проделывают отверстия для гаек, перпендикулярно прикрепляют 2 детали по 10 см. Сварочным аппаратом гайки приваривают к опорной раме. Чтобы облегчить продольное пиление бревна бензопилой, конструкцию оснащают ручками. Для этого к ней приваривают предварительно согнутую металлическую деталь. Затем все готовые части конструкции собирают вместе. Для этого в паховые детали вставляют зажимы и шину бензопилы. Какой ширины получатся заготовки, зависит от промежутка, находящегося между боковиной рамы и шиной
Поэтому шину бензопилы важно закреплять правильно. Чтобы увеличить скорость и качество пиления, на бензопилу для продольного пиления устанавливают цепь для продольной резки изделий
Чтобы увеличить скорость и качество пиления, на бензопилу для продольного пиления устанавливают цепь для продольной резки изделий.
Снегоуборщик

Купить фабричный снегоуборщик хорошего качества немногим по карману. Зато собрать самостоятельно такой аппарат под силу тем, кто любит и умеет сам что-либо мастерить. Как правило, для сборки используют то, что имеется из старого ненужного хлама.
Конструкция получается при этом надежная — порой надежнее, чем фабричные модели. Инструкций по сборке в интернете хватает, поэтому можно поискать подходящую именно вам схему сборки.
То есть это получится именно шнеко-роторный снегоотбрасыватель, а не просто машина с отвалом. Бензопила как обычно используется здесь в качестве двигателя. При этом она должна иметь приличную мощность — от 5 л.с. Как правило применяют Дружбу или Урал, но в принципе можно приладить и современные модели.
Устройство самоката из бензопилы

С помощью двигателя бензопилы можно собрать не только приспособления для ручного пользования, но и полноценное транспортное средство, функционирующее на горючем топливе. Одна из таких конструкций – самодельный самокат с мотором от бензопилы.
Для создания этого устройства понадобиться обычный самокат, оборудованный системой ручного тормоза и надувными колесами. Двигатель от пилы необходимо закрепить на задней платформе самоката и удостовериться, что линия звезд мотора и заднего колеса совпадает.
Чтобы контролировать уровень подачи энергии на таком самокат, ручной акселератор требуется соединить с проводами, отвечающими за включение и выключение мотора бензопилы. В случае возникновения сложностей допускается монтаж специальной педали.
Это важно! Езда на подобном транспортном средстве требует соблюдения определенных мер безопасности, поэтому открытые участки двигатели, звездочки и другие детали самоката необходимо закрыть ограждениями во избежание получения травм и порчи одежды.
Велосипед с двигателем от бензопилы, так называемый мопед. Принцип применения двигателя тот же что и у самоката.
Пошаговые инструкции по изготовлению
Далее будут представлены подробные инструкции и рекомендации, как изготовить мопед из бензопил различных марок с помощью приспособлений, а также как произвести мопед из велосипеда и мотора от бензопилы.
Как сделать мопед из бензопилы Урал
Мопед будет состоять из рамы, которая повторяет форму рамы велосипеда, двигателя и редуктора, которые собираются из мотора бензопилы марки «Урал», бачка для топлива, тормозной системы.
Для того чтобы алгоритм сборки был понятен, представим его поэтапно с помощью фотографий.
Шаг 1. Берем пилу марки Урал и очищаем ее от загрязнений, если они имеют место быть.

Шаг 2. От бензопилы отсоединяется редуктор и двигатель, демонтируется пильная цепь и полотно. Дополнительно подбирается приводная звездочка велосипеда. Можно использовать звездочку, которая запрессована на раму с помощью подшипников.
На фотографии представлена звездочка в сборе с фрагментом рамы.

Шаг 3. Болгаркой срезаем педаль, оставив только место крепления.

Должна остаться вот такая конструкция.

Рисунок 4. Ниже мы еще вернемся к нему
Шаг 4. Примеряем звездочку к редуктору двигателя бензопилы.

Шаг 5. К стороне, с которой болгаркой удалили педаль (рисунок 4), привариваем ведущую звездочку велосипеда.

Шаг 6. Конструкцию из звездочек привариваем на прутках к редуктору бензопилы с соблюдением соосности ведущей звездочки редуктора бензопилы и приводной велосипедной звездочки.

Подвижные части двигателя мопеда закрываются кожухами, а сама конструкция закрепляется на специальных кронштейнах над задним колесом мопеда.

Шаг 7. С руля велосипеда снимаются полимерные накладка, а в трубках просверливаются отверстия для монтажа акселератора (газа). Управление газом производится через тросик натяжения к пружине акселератора на двигателе.

Шаг 8. Также на рукояти монтируется система пуска (кнопка старт-стоп), которая ограничит движение приводящей цепи после того, как двигатель будет заведен магнето.

В итоге должно получится вот такое транспортное средство.

Которое заводится посредством магнето.

Как сделать мопед из бензопилы Дружба
Отличие от сборки мопеда с использование мотора пилы «Урал» состоит в том, что у «Дружбы» более тяжелый и мощный двигатель, который можно расположить только на нижней раме.
В идеале должна получится подобная конструкция.

Но возможны разнообразные вариации с инженерной конструкцией и геометрией рамы, а также с различным диаметром колес.

В остальном сборка мопеда аналогична, но только в данном случае приводящая шестеренка двигателя бензопилы напрямую соединяется цепью с приводной шестеренкой заднего колеса.
Кстати, для удобства и освещения дороги в вечернее время на мопед можно повесить фонарь, который будет «питаться» от небольшого генератора, преобразующего вращение колеса в электроэнергию.
Рекомендуем почитать интересные статьи о том, как сделать из бензопилы Дружба мотоблок и снегоход, что еще полезного можно сделать из этой пилы читайте здесь.
Как сделать мопед из бензопилы и велосипеда
Алгоритм производства мопеда с двигателем от бензопилы на велосипедной раме уже представлен в статье в качестве типовой инструкции изготовления.
Но также необходимо учесть ряд нюансов, которые касаются рекомендаций по конструкции велосипеда, мощности пилы, использования дополнительных приспособлений.
Итак, рекомендации:
- Необходимо подбирать модели велосипедов с «мужской» рамой. Данная конструкция отличается жесткостью и лучшей управляемостью при работе двигателя. Кроме того, она позволяет эргономичное и надежное крепление двигателя к раме.
- Лучше всех себя зарекомендовали пилы марок «Урал 2Т» и «Дружба М», их мощность в 3 кВт позволяет разогнать мопед до 40 км/ч.
- В качестве бачка для топлива достаточно резервуара емкостью до 2 литров. В качестве бачка можно использовать бутылку.
Мопед из бензопилы Штиль
Изготовление мопеда из бензопилы марки «Штиль» также аналогично производству мопедов из прочих моделей бензопил.
Но есть один очень удобный нюанс, который крайне удобен касательно применения в мопедах. Редуктор и звездочка двигателя бензопилы Штиль находится сбоку от корпуса, что позволяет существенно уменьшить конструкцию сборного редуктора в мопедах.

При использовании бензопилы Штиль, крутящий момент передается с помощью шкивов и ремня.
А после изготовления рамы, «подвеса» бачка, тормозов и фонаря, монтажа двигателя получится примерно вот такая конструкция.

Так выглядит готовый вариант самодельного мопеда с использованием бензиновой пилы Штиль 180
Как правильно работать с самодельным приспособлением
Правила ТБ при работе на таких устройствах те же, что и для любых деревообрабатывающих станков. Оператору и посторонним нельзя приближаться к режущему полотну. Нежелательно работать уставшим, со сниженной реакцией. Следует руководствоваться здравым смыслом. Одежда должна быть застегнутой и подтянутой, без размашистых пол, которые могут попасть в цепь.
При широком разбросе опилок следует одеть защитные очки. При длительной работе для защиты от шума желательно одеть наушники.
Технические особенности:
- Нельзя давить на режущий узел. Пила продвигается по мере выборки опилок из пропила, без усилий.
- Нельзя использовать цепи с затупленными зубьями, шины со стертыми пазами.
Ямобур из бензопилы – порядок изготовления в домашних условиях
Прежде, чем изготовить мотобур из бензопилы, следует внимательно изучить чертежи. Схема поможет вам определить правильный порядок действий и не допустить ошибок.

Если вы не нашли фанеру нужной толщины, то вместо нее можно взять два более тонких листа и склеить их вместе. Получив изделие подходящей толщины, выполните на нем разметку для проделки требуемых отверстий, предназначенных для крепежных элементов. При помощи сверла вам потребуется проделать 2 дополнительных отверстия – одно из них должно располагаться напротив звездочки мотобура из бензопилы, а второе – рядом с первым – предназначено для монтажа гаек.
Дальнейший порядок действий при изготовлении мотобура из бензопилы выглядит следующим образом:
- Сделайте углубление в верхней части изделия из фанеры, используя для этого шлифовальную машинку. После этого приложите к обработанному месту редуктор, чтобы выяснить место его установки в мотобуре из бензопилы. При этом обязательно учтите особенности бытового инструмента, который используется для изготовления конструкции. Если в устройстве пилы предусмотрена звездочка с 6 лучами, то воспользуйтесь 27-миллиметровым редуктором;
- Далее закрепите редуктор, отцентрируйте его и надежно закрепите к нижней части фанеры. Затем к верхней части фанеры прикрепите бензопилу. После этого запустите ее двигатель и проверьте надежность конструкции;
- На следующем этапе нужно прикрепить к самодельному ледобуру из бензопилы шнек. Для этого возьмите трубу с толстыми стенками и прикрепите ее к редуктору посредством двух болтов. Крепление шнека к редуктора в мотобуре из бензопилы должно осуществляться посредством переходника, играющего роль амортизатора Его можно сделать из стальной 15-сантиметровой трубы, на которую навариваются кольца. Далее обработайте переходник на токарном станке;
- Чтобы работать с мотобуром из бензопилы было удобнее, агрегат нужно оборудовать ручками. Для их изготовления берется изогнутая стальная труба, на края которой надеваются уплотнители из резины. Закрепить рукоятку на мотобуре из бензопилы можно при помощи саморезов или других подручных крепежей;
- Лишние части фанеры на мотобуре из бензопилы обрезаются, а края оставшегося листа обрабатываются электрическим лобзиком;
- Далее готовый мотобур из бензопилы следует оборудовать режущими ножами. Для этого обрежьте стальные листы и приварите их к трубе, которая была использована в качестве шнека. При этом стальные листы должны огибать шнек в виде спирали. Края листов нужно тщательно заточить.
Изготовленный своими руками мотобур из бензопилы можно использовать для льда или для земли. В процессе эксплуатации регулярно затачивайте лезвие агрегата. Для этого лучше всего использовать мелко- или среднезернистый брусок или наждачную бумагу, обозначенную маркировкой H4 или H6.
Делаем мотовелосипед своими руками
Итак, как из бензопилы сделать мопед своими руками? Для этого не нужно обладать высшим техническим образованием и иметь под рукой передвижную мастерскую – достаточно необходимого минимума инструментов, рабочего мотора от бензопилы практически любой марки и рамы от велосипеда, желательно сделанной из металлических трубок, чтобы выдержать нагрузку от двигателя.
Подбор мотора
Ничего сложного в том, как сделать велосипед с мотором от бензопилы, нет. Но нужно понимать, что от легкой бензопилы, что используется для мелких работ, мотор не подойдет – его мощность должна быть не менее 2 л.с. или 1.5 кВт. А вот что касается объема, тот здесь ситуация прямо противоположная – объем не должен превышать 50 см3, в противном случае это нарушит положение Венской конвенции. А так для такого транспортного средства не нужны права и регистрация, так как это средство определяется как «велосипед с подвесным двигателем».
Оборудование рамы
Самодельный мопед из бензопилы делается из велосипеда в любом, даже в самом «убитом» состоянии – главное, чтобы была целая рама. Устанавливается двигатель от бензопилы на велосипед на стык нижней и подседельной трубы – это оптимальный способ расположения. Рядом с ним прикручивается бачок для бензина, а над двигателем, на верхней трубе, устанавливается аккумулятор. Установить двигатель от бензопилы нужно так, чтобы он был закреплен прочно и надежно – мотор подвержен вибрации и если его слабо закрепить, он упадет.
Если нет рамы от готового велосипеда, ее можно запросто сварить – для этого нужно несколько труб и сварочный аппарат. Так даже лучше – такой мотовелосипед из бензопилы своими руками будет более прочным и надежным, а самостоятельно сваренная рама позволит расположить мотор как можно ближе к ведущему колесу.
Трансмиссия
Просто мотор от бензопилы поставить на велосипед мало – нужно сделать так, чтобы крутящий момент от мотора передавался на колеса. Для этого используются шкивы или цепной механизм:
- Система шкивов. В данном варианте двигатель от бензопилы на велосипеде будет передавать крутящий момент через ремень. Такая система проще – в ней используются заводские или самодельные шкивы, один на вал двигателя, второй на втулку заднего колеса, а также натяжной ремень. Минус – ремень растягивается быстрее цепи и менее долговечен, хотя клиновидные ремни не уступают цепям в долговечности.
- Цепная передача. Здесь можно использовать заднюю звездочку, а на вал двигателя установить шестерню. Передача момента происходит через цепь – она более долговечна и устойчива к нагрузкам, но требует регулярного ухода. Выбирайте сами, как сделать велосипед с мотором от бензопилы, точнее, какую трансмиссию на него устанавливать.
Подключение двигателя
Мотосамокат из бензопилы своими руками не поедет, если двигатель не подключить правильным образом. Для этого необходимо подключить аккумулятор к блоку зажигания двигателя, а также к тормозной ручке. Соединительный тросик выставляйте так, чтобы он мог легко заводиться с помощью ручки. Последним шагом будет установка выхлопной трубы – ее можно и не ставить, но в этом случае самокат из бензопилы будет «радовать» выхлопом прямо в лицо.
Как видно, ничего сложного в том, как на велосипед поставить двигатель от бензопилы, нет – здесь нужно приложить лишь немного усилий и иметь необходимый минимум запасных частей и агрегатов. Но такой самоходный механизм будет ехать чуть быстрее обычного велосипеда. А вот самодельные картинги из бензопилы – это совсем другой уровень. При правильном подходе можно устраивать настоящие гонки, поэтому рассмотрим ниже, как сделать картинг из бензопилы своими руками.
Принцип конструирования снегохода на базе двигателя от бензопилы
С помощью бензинового мотора пилы можно монтировать транспортные средства, которые способны передвигаться не только по твердой поверхности, но и по снегу.
Соорудить самодельный снегоход на основе двигателя бензопилы реально, но здесь конструкция выйдет более сложной. Раму механизма требуется оснастить подвеской с амортизаторами, а также оборудовать аппарат сцеплением.
В качестве механизма управления может выступить обычный руль от велосипеда, важно лишь оборудовать его под движение снегохода. Кроме того, важно внимательно подойти к обеспечению крутящего момента, поскольку ввиду отсутствия коробки передач транспортное средство сможет передвигаться только благодаря правильно смонтированному сцеплению
Это важно! Тягу всегда можно увеличить, установив на приводе звездочку, превышающую по диаметру звездочку двигателя.
Как работать на самодельной пилораме
Собранный инструмент обязательно проверяют на работоспособность. Порядок работ:
- Бревно укладывают на основание и зажимают тисками.
- Установку разметки делают не только на полозьях, но и на станке.
- Затем включают пилу и подводят к заготовке так, чтобы ее шина располагалась в центральной точке пропила. Шина пилы застопорится, если движения делать рывками, поэтому распил проводят плавно и медленно.
Работая на портативном инструменте, следует соблюдать меры безопасности. В качестве защиты надевают халат, рукавицы с нарукавниками и очки. Для защиты подвижной рамки от стружки и цепи пилы устанавливают акриловые или пластиковые щитки.
Принцип создания мопеда из бензопилы
На сегодняшний рынок техники производители поставляют различные приспособления, приставки, моторчики для любых переделок и усовершенствований всевозможных агрегатов в совершенно неожиданные конструкции. Поэтому для желающих по-быстрому оснастить свой велик мотором и придать ему соответствующее ускорение, возможен вариант приобретения готового комплекта. В соответствии с предлагаемой схемой на велосипед устанавливается движок – и мопед готов.
Суть переделки заключается в монтаже силовой установки на велосипед. Следует учитывать, что мощность устанавливаемого двигателя от мотопилы должна быть ориентировочно 2 л.с., поскольку менее слабый мотор не сдвинет велосипед с места, а слишком мощный будет излишним.
Как сделать снегоход из бензопилы
Снегоход изготавливается по одной из 2 схем:
- одногусеничная (2 лыжи спереди, 1 гусеница сзади);
- двухгусеничная (1 лыжа спереди, 2 гусеницы сзади).
Любое снегоходное устройство имеет следующую конструкцию:
- Двигатель.
- Система питания.
- Система впрыска масла.
- Трансмиссия.
- Ходовая часть.
- Рулевое управление.
- Корпус.
- Электрическое оборудование.
Перед тем как приступить к изготовлению самодельного снегохода из бензопилы и его дальнейшей сборке, необходимо спроектировать чертежи всех рабочих узлов и общего вида транспортного средства. Каждую сборочную единицу лучше начертить по отдельности и вынести размеры.
В процессе разработки учитывают марку бензинового инструмента.
Мотопила Дружба отличается простой конструкцией. Недостатком является малая мощность мотора (1 кВт) при большой массе инструмента (12 кг).
Урал имеет вес 11,7 кг и мощность двигателя 3,68 кВт.

- способность работать при низких температурах;
- высокая экологичность.
Выбор при изготовлении снегохода из бензопилы своими руками можно остановить на марке Штиль. Она характеризуется бесшумностью во время эксплуатации, мощностью в 1,5 кВт, при этом имеет номинальную массу всего 3,9 кг.
Стойки
Начальный этап — изготовление основы рамной конструкции из сварных лонжеронов. Для средней части используют уголки 50х63 мм из закаленной стали, передняя и задняя выполняются из стали S2 с отбортовкой под углом 90°. Во всех элементах должны быть предусмотрены отверстия одинакового диаметра для монтажа с гусеничным колесом и приводным валом. Снизу рамы привариваются кронштейны для опорных катков.
Стойки делают из уголков 30х30 мм и соединяют металлическими поперечинами. В результате должна получиться конструкция в виде небольшого портала. Для места крепления редуктора мотопилы и вала цепной передачи необходима площадка. Выбирают листовую сталь необходимого размера, чаще толщиной 2-3 мм, и сварочным способом прикрепляют к центру правой стороны модуля и порталу.
Сзади портала и одновременно на середине модуля формируют место под сиденье, которое впоследствии изготавливается из досок и ткани или снимается в готовом виде из старой техники, например, мопеда.

К балке, в качестве которой берут стандартную водопроводную трубу радиусом 0,75 мм, устанавливают передний лонжерон и траверсу ведущего моста. С обоих концов приваривают втулки рулевых лыж, по центру — стойку для моторного подрамника. Места крепления опор для прочности и устойчивости конструкции усиливаются металлическими 2-миллиметровыми косынками.
Гусеница
В качестве гусеницы используют механизм от агрегата Буран, укорачивают ленту на 0,75-1 м. Шестерни зубчатой передачи высаживают на поперечные валы, затем укладывается полотно. Зубчатое колесо гусеницы делают из капронового листа размером 15 мм.
Приводной вал
Для изготовления приводного вала берут металлическую трубу диаметром 14 мм, сверху устанавливают фланцы для фиксирования зубьев колес. На концах механизма впрессовывают и приваривают наконечники-цапфы с предусмотренным местом под подшипники.
Двигатель
Двигатель снегохода — самый главный узел, который влияет на работу всей самоходной техники. Поэтому специалисты рекомендуют использовать силовую установку от бензопилы Штиль с мощностью двигателя 1,5-3 кВт. Мотор крепят на устойчивую опору поперечной балки. Редуктор проворачивают на 180°, фиксируют на площадке, также монтируют промежуточный вал 2-ступенчатой передачи. Сверху устанавливают топливный бак.

Звездочки
Приводная звездочка с внутренней шпонкой из Ст20 к валу прикреплена гайкой М12 с пружинной шайбой. Для точной фиксации на наконечнике нарезают резьбу нужного параметра. При этом учитывают, что 1 ступени передачи соответствует большая звездочка с максимальным передаточным числом (на двигателе от «Урала» насчитывают 38 зубьев), 2 ступени — маленькая ведущая звездочка с 10 зубьями.
Цепи — стандартного типа, имеющие шаг около 16 мм.
Тормозная система
Если снегоход рассчитан на езду с небольшой скоростью до 30 км/ч, то тормозную систему можно не предусматривать. Остановка транспорта осуществляется трением в ходовой и трансмиссионной системах.
Рулевое управление
Управление — рулевое на опорно-рулевых лыжах. Опорные рычаги жестко соединяются с сошкой рулевого вала. Руль двуручный, с правой стороны монтируется газовая рукоятка.



































