Мотоблок: назначение
Мотоблок – механизированная техника для сельскохозяйственных работ. В зависимости от типа двигателя питается бензином или дизелем.

По сравнению с трактором мотоблок имеет малые габариты, что делает его удобным для обработки земель малой и средней площадей (0,1-1,0 Га).

Характер обработки зависит от навесного оборудования мотоблока:
- Плуг – для вспахивания грунта;
- Чеснокосажалка – для посева чеснока;
- Картофелекопалка – для сбора клубней картофеля;
- Аэратор – для орошения культуры;
- Ковш – для уборки снега и грунта;
- Прицеп – для транспортировки урожая и прочих грузов.
Соответствующие насадки идут на все чертежи мотоблока при условии, что они представлены одним и тем же производителем.
Как сделать раму
После подготовки инструментов и комплектующих, необходимых для создания минитрактора, приступают к «перекройке» рамы мотоблока, чтобы, в соответствии с чертежом, приспособить её под дополнительную пару колёс. Платформу будущей самодельной машины можно сделать цельнометаллической или переломной с использованием швеллеров или профильных металлических труб. Продольные и поперечные лонжероны сделать несложно – их нарезают болгаркой и соединяют электросваркой или крепёжными элементами. Для большей надёжности болтовые соединения комбинируют с дополнительной проваркой швов.
При трансформации культиватора в минитрактор часто используют именно переломку, состоящую из двух независимых полурам, соединенных между собой при помощи шарниров. Благодаря такой конструкции все четыре колеса трактора почти всегда контактируют с грунтом, и практически не происходит их вывешивание при эксплуатации самоделки по неровной поверхности или скользкой дороге. Это позволяет повысить устойчивость минитрактора из мотоблока, улучшить его маневренность и проходимость при осуществлении пахотных и транспортных работ.
Самостоятельное изготовление колесного вездехода
Прежде всего, рекомендуется оборудовать стандартные силовые агрегаты понижающим редуктором. Это обусловлено тем, что оптимальный крутящий момент как у бензиновых, так и у дизельных моторов достигается при 80% от максимальной скорости вращения коленвала.

Рама для вездехода
Дополнительно, двигатель стоит оборудовать принудительным охлаждением. Причина в том, что движение будет осуществляться на малых скоростях, а набегающего воздушного потока мало, чтобы обеспечить рабочий тепловой режим силовой установки.
Рама вездехода
Прежде всего, требуется сделать раму, которая будет находиться между передним, а также задним мостом. С этой целью берут профилированные трубы, имеющие квадратное сечение. Такие элементы имеют высокий уровень жесткости. При использовании тяжелых мотоблоков типа МТЗ либо Нева зачастую проводят жесткую стыковку рамы. Благодаря этому вездеход получится однообъемным.
Другой вариант заключается в применение ломающейся рамы, что предпочтительно для применения агрегата в холмистой местности. В этом случае сочленение будет делаться посредством шкворня. При этом оба моста будут оборудоваться независимей подвеской.
Задний мост, а также подвеска
Легче всего использовать для создания заднего моста готовые элементы от старого легкового автомобиля, к примеру, Москвича 412. Это обусловлено небольшой массой таких частей, позволяющих применять их для создания вездехода. Для плавности хода подвеску делают на амортизаторах, что снижает еще и вибрацию кузова.
Чтобы снизить расход топлива и сопротивление при движении по пересеченной местности рекомендуется создавать независимую подвеску для каждого заднего колеса отдельно. Но это создает больший уровень раскачивания. Чтобы скрепить раму с задним мостом, требуется применять закаленные болты, а для придания эластичности соединениям требуется использовать резиновые вставки.

Вездеход с лыжами
Для движения по снегу на задний мост устанавливают лыжи.
Колеса
Для повышения сцепления колес с дорогой, особенно по болотистой местности, используется мотоблок на шинах низкого давления. Такие колеса за счет незначительного давления на грунт позволяют сделать движение вездехода на камерах максимально плавным. Для этого применяются специальные колеса от крупных болотоходов.
Также их можно самостоятельно собрать из компонентов, что осуществляется следующим образом:
- Для создания самодельных дисков, требуется провести сварку классических дисков со специальными крепежными пластинами.
- Дальше на расширенный диск надевают большую камеру и накачивают её.
- Готовые колеса монтируются на вездеход.
Для повышения проходимости и сцепления таких колес с землей, требуется вырезать из покрышек специальные грунтозацепы и установить их на камеры.
Мотокультиватор на базе двигателя бензопилы
Для изготовления такого культиватора используют двигатели, как с советских пил «Дружба» или «Урал», так и с современных пил иностранных производителей. Вместе с мотором используют топливный бак, угловой редуктор и органы управления бензопилы.

Рама изготавливается из швеллера, труб, а также уголка под двигатель и передаточные механизмы. Рабочие органы приводятся во вращение зачастую червячным редуктором, червяк которого приводится либо напрямую от редуктора бензопилы, либо через ременную или цепную передачу. Видео, как сделать мотоблок с бензопилы, представлено ниже.
Основным недостатком такой конструкции является отсутствие заднего хода и возможности изменения частоты вращения рабочих органов. Его можно устранить, добавив коробку передач с мотоцикла или мопеда с механизмом реверса.


Минтрактор из мотоблока Зубр
Китайские мотоблоки Зубр оснащаются бензиновыми и дизельными двигателями различной мощности. Для постройки трактора рекомендуются дизельные тяжелые мотоблоки, которые оснащены системой жидкостного охлаждения. За счет этого трактор сможет работать длительное время в условиях повышенных температур окружающего воздуха.

Чтобы сделать трактор из мотоблока своими руками, потребуется сделать раму из стального уголка 50 мм. На передней части рамы расположены поперечины для установки двигателя. Рама дополнительно усилена поперечинами и укосинами, которые повышают жесткость на кручение.
Двигатель жестко закреплен на раме, поэтому возможно появление усталостных трещин под точками установки. Момент от двигателя передается парой ремней на расположенную над задней осью коробку передач. Зона работы ремней закрыта металлическим щитком (для защиты левой ноги оператора) и поперечиной (для защиты руки от травм).
Рулевой редуктор от «классических» моделей ВАЗ устанавливается на кронштейне рядом с педальным узлом. Для механизма поворота используются серийные детали рулевых механизмов отечественных и импортных автомобилей.
Для остановки применяются механические ленточные тормоза. Барабаны выполняются из стальных цилиндрических заготовок (например, старых баллонов для газа). Установка рычагов и педалей делается на втулках, размещенных на раме. Приводы тормозов регулируются по длине для компенсации износа колодок и изменения интенсивности торможения.
Особенности выбора агрегата
При желании выбрать подходящую модель мотоблока обратите внимание на ряд важных параметров. Среди них:
- обрабатываемая площадь;
- тип решаемых задач;
- мощность оборудования.
Если размеры вашего участка не превышают 10 соток, то, естественно, лучше остановить свой выбор на приборе для культивации земли. Если же вы владеете более крупной территорией, здесь есть смысл задуматься о покупке полноценного мотоблока.
Что касается показателей мощности, то их выбирают с учетом типа работ, которые будут проводиться на участке. Для сезонной вспашки почвы в осенний период достаточно приобрести агрегат мощностью двигателя 5,5−6 лошадиных сил. Правда, если речь идёт об обработке целины и сухих почв, то вам понадобится приобрести более тяжелую модель с усиленным мотором. Скорее всего, он будет работать на бензиновом топливе стандарта А92 или А95. Также есть дизельные разработки, потребляющие от 2 до 2,5 литров топливной смеси за час усердной работы.
При желании приобрести миниатюрную версию трактора, отдавайте предпочтение продукции от проверенных брендов. Не секрет, что малая техника европейского производства может комплектоваться «родными» силовыми установками более известных производителей, поэтому такой двигатель сможет прослужить будущему хозяину очень долгое время. Если обеспечить оборудованию надлежащий уход и обслуживание, оно свободно проработает около 15 лет, и столько же после капитального ремонта в хорошем сервисном центре.
Что касается китайской продукции, то она не может похвастаться хорошими показателями мощности, надёжностью и долговечностью. Однако и в этом сегменте можно найти вполне неплохое решение. Просто тщательно изучите репутацию компании, узнайте отзывы реальных покупателей на форумах и порталах для фермеров.
Как собрать
Делать следует либо передний, либо задний вариант, все зависит от модели мотоблока. Если разницы нет, выбрать второй тип, так как изготовить его намного проще. Соблюдать простую инструкцию, желательно заранее посмотреть фото готовых изделий, четко понимать, как должен выглядеть результат работы.
Конструкция с задним расположением
Ее называют тележка, так как она ставится на стандартное прицепное устройство. Еще до начала работы сделать чертеж со всеми размерами, либо найти готовый, вариантов много, есть из чего выбрать. Хорошо разобраться, если нужно, внести корректировки, чтобы точно подогнать изделие под свою технику. Проводить работу так:
Нарезать трубу либо уголок, зачистить свариваемые торцы. Сложить части на ровной поверхности, проверить геометрию с помощью угольника и измерения диагоналей. Сварить основную часть каркаса. Вначале прихватить, потом перепроверить положение еще раз, только после этого сделать сплошные швы по всей длине соединений. Зачистить наплывы металла шлифовальной машинкой. Приварить сцепку к хвостовику, подобрать положение точно, все размеры снимать на мотоблоке. Удобнее работать с помощником, так как самому выставлять детали и контролировать их положение сложно. Закрепить пол и педали, либо рычаги. Все части точно подогнать, выставить и проверить, нормально ли они двигаются. Установить сиденье. Предварительно подобрать правильное положение, потом салазки либо приварить, либо закрепить болтами. В этом случае просверлить отверстия в нужных местах, использовать крепеж с шайбами. Укрепить пол в местах расположения болтов дополнительными ребрами жесткости. Поставить колеса. Тут работа зависит от типа их крепления к раме
Проще всего сделать отдельные модули из квадратного профиля и ступицы, которые вставляются внутрь трубы и крепятся
Уделить внимание выставлению сцепки сзади. Лучше всего, если ее можно будет регулировать по высоте
Сделать крепежную пластину с отверстиями, она позволит крепить узел выше или ниже, это самое простое решение.
При сборке системы с подвижным сочленением соединительный узел должен быть жестким и поворачиваться только в горизонтальной плоскости. Проще купить готовый шарнир, так как в домашних условиях точно подогнать эту часть конструкции сложно.
После сборки проверить, нормально ли крепится сцепка к мотоблоку, удобно ли управлять. Все недочеты лучше найти на этой стадии, сразу устранить. Потом зачистить все очаги коррозии на металле, если они есть, покрасить поверхность в 2-3 слоя для надежности.
Вариант с передним расположением
Передний адаптер для мотоблока Нева с рулевым управлением можно купить готовым. Он также подходит для других моделей техники – Ока, Каскад, Луч, Целина. Но он обойдется от 23 000 рублей, поэтому есть смысл сделать его своими силами, используя готовые изделия как образец. Чертежи несложно найти, что тоже хорошо. Работу проводить так:
Продумать расположение всех элементов управления. Чаще всего проблемы возникают именно с этим. Проще всего использовать рычаги или педали, распланировать их расположение заранее, исключить любые проблемы. Сварить несущий каркас
Уделить внимание месту присоединения к мотоблоку, его стоит дополнительно укрепить. Использовать уголок или трубу с запасом прочности, чтобы под нагрузками элементы не деформировались
Проще всего использовать готовую рулевую колонку и рейку
Купить любой небольшой вариант на авторазборке, тогда ничего не придется придумывать. Поставить колеса со ступицами, по месту подогнать рулевой механизм. Приварить пол, выставить сиденье и все элементы управления. Проверять каждый узел при монтаже, чтобы убедиться, что он работает как нужно и проблем после сборки не возникнет. Готовый адаптер с рулем к мотоблоку Нева, собранный своими руками, надо испытать после сборки
Уделить внимание рулевому механизму и удобству управления. Окрасить все незащищенные металлические поверхности, перед этим очистить сталь от коррозии
Такие варианты хороши тем, что при работе используется стандартная сцепка мотоблока и доступен вал отбора мощности для активных агрегатов. Можно дополнительно поставить фары, чтобы передвигаться или работать даже в темное время, для этого в передней части рамы сделать два кронштейна для крепления и провести проводку.
Собрать адаптер для мотоблока просто, если есть подробный чертеж с размерами, все необходимые материалы и инструменты. Раму лучше всего сваривать для надежности, остальные части допускается крепить и болтами, потом можно быстро собирать или разбирать. Окрашивать металл, иначе он начнет ржаветь.
Вездеход из мотоблока – подготовка и изготовление
Непосредственно перед тем, как сделать мотовездеход, потребуется определиться с типом самодельного транспортного средства. Для этого нужно учесть условия эксплуатации вездехода, грузоподъемность, и, конечно же, не забывать об опыте работы.
Если у вас нет опыта в изготовлении гусеничного механизма, то стоит попробовать сделать болотоход с пневматическими колесами.
Выбираем двигатель для вездехода
Пневмоходы, как правило, работают на моторах с системой принудительного охлаждения. Это следует учесть, и выбирать для самодельного вездехода мотор, оборудованный воздушным или водяным охлаждением. Не нужно забывать, что выбранный двигатель обязательно должен иметь определенный запас мощности. В противном случае, пневмоход из мотоблока не получиться эксплуатировать в тяжелых условиях. Как правило, оптимальным вариантом станет применение мотора, мощностью около 15–20 л. с., а для легкого вездехода, или караката, подойдет мотор, мощностью до 15 «лошадок». Второй важный фактор – это тип мотора. Довольно сложно дать конкретные рекомендации по поводу того, какой двигатель лучше – дизель или бензиновый, так как каждый из них обладает своими достоинствами и недостатками. Тем не менее, вездеход на пневмоходу все же лучше оснащать дизельным двигателем – он менее требовательный к качеству горючего и не нуждается в особом уходе.
Колеса низкого давления своими руками
Для изготовления легкого вездехода – караката, потребуется сделать крупные мощные колеса, которые сделают каракат из мотоблока максимально проходимым. Изготовить такие колеса можно несколькими способами:
- первый метод заключается в использовании 2 дисков, изготовленных из листового металла. При создании колес их нужно закрепить на втулку, после чего установить камеру. В конце камера фиксируется кусками транспортерной ленты;
- второй метод более сложный в исполнении. Он подразумевает монтаж и фиксацию одного диска на втулке с последним креплением к нему перемычки. После этого по бокам к колесу потребуется приварить стальные кольца;
- третий метод чем-то напоминает предыдущий. Разница только в том, что в качестве центрального диска используется спица из листового металла или трубы;
- четвертый способ подразумевает крепление к телу втулки двух дисков, взятых от колес мопеда.
Каждое такое колесо способно выдержать достаточно большие нагрузки, независимо от погодных условий конкретного региона.
Поэтапная сборка вездехода
На изготовлении колес и выборе двигателя подготовка к изготовлению вездехода не заканчивается
Крайне важно заранее изучить чертежи, которые подскажут, как и в каком порядке монтировать элементы агрегата.Чтобы сделать мини-вездеход своими руками, потребуется действовать в таком порядке:
- В первую очередь нужно выбрать основу каркаса для вездехода. Для этого подойдет рама от старых советских мотоциклов УРАЛ и ИЖ. При чем, мини-вездеходы на колесах с рамой от ИЖа являются самыми маневренными. Если для задуманного вами вездехода не подходит ни один из перечисленных вариантов, то каркас можно сварить самостоятельно, используя для этого швеллеры, трубы и уголки с разным диаметром;
- На втором этапе потребуется сделать подвеску и задний мост вездехода. Мотоблок на камерах должен обладать независимой подвеской – она более сложная в изготовлении, однако агрегат с таким механизмом получиться более маневренным и удобным при езде. Чтобы сделать независимую подвеску, соедините лонжероны между собой подкосом, рулевой втулкой и отдельной стойкой;
- Следующий шаг подразумевает монтаж на вездеход изготовленных ранее колес. Это делается посредством стальных ступиц. На каждой из них должны быть установлены прочные ленты, которые будут оплетать колеса в поперек;
- На последнем этапе потребуется установить мотор и другие, необходимые для работы вездехода системы, и надежно закрепить их на раме. Как колесный, так и гусеничный вездеход, должен быть оборудован сцеплением, тормозной и выхлопной системой;
- В конце сборки обязательно проверьте самодельный вездеход. Если вы не обнаружили никаких дефектов, то можете приступать к ежедневной эксплуатации агрегата.
Сделанный мотоблок на пневмоколесах станет незаменимым помощником в тех случаях, когда его владельцу нужно быстро преодолеть болотистые участки и русла рек. Отличная плавучесть колес делает вездеход подходящим средством передвижения по различным водным преградам. При этом на суше вездеход на базе мотоблока сможет развивать скорость до 70 км/ч.
Устройство
Такие самоделки на селе, как минитрактор, отличаются довольно простым конструктивным устройством, что дает определенные преимущества тому человеку, который будет осуществлять процесс сборки. Для умелого хозяина не составит труда собрать самодельный трактор своими рукам в домашних условиях.
Ввиду того, что самодельные агрегаты сделаны по образу и подобию своих магазинных «братьев», их конструкция будет во многом схожа.
Условно, можно разделить самодельный минитрактор на несколько рабочих узлов:
- Рамная конструкция. Это, пожалуй, наиболее важная часть устройства минитрактора, ведь от прочности рамы будет зависеть устойчивость и работоспособность всего агрегата.
- Коробка передач. Данное устройство можно взять от старых советских автомобилей, которые вполне пригодны для этих целей.
- Редуктор.
- Колесная база. Для данной цели можно использовать колеса от старой техники – тех же отечественных авто.
- Силовой агрегат. В самоделке минитрактора можно использовать мотоблок, как основную движущую силу. Следовательно, и двигатель будет применяться тот же, что и на мотоблоке, но это не строгая рекомендация (смотрите как сделать трактор из мотоблока своими руками).
- Для этих целей можно использовать и другой мотор, желательно работающий на дизеле, с приличной мощностью (не менее 9 л.с.).
- Рулевое управление.
- Прочие составляющие. Сюда входит сцепление, сиденье для водителя и т.д.
Как мы видим, большинство комплектующих будет заимствовано от старой, отслужившей свое, технике, поэтому затраты на изготовление минимальны. Единственное, придется немного поработать со сваркой рамы и настройке элементов управления, но для сельского умельца это привычное дело, не вызывающее особых проблем.
Мотоблок: назначение
Мотоблок – механизированная техника для сельскохозяйственных работ. В зависимости от типа двигателя питается бензином или дизелем.
По сравнению с трактором мотоблок имеет малые габариты, что делает его удобным для обработки земель малой и средней площадей (0,1-1,0 Га).
Характер обработки зависит от навесного оборудования мотоблока:
- Плуг – для вспахивания грунта;
- Чеснокосажалка – для посева чеснока;
- Картофелекопалка – для сбора клубней картофеля;
- Аэратор – для орошения культуры;
- Ковш – для уборки снега и грунта;
- Прицеп – для транспортировки урожая и прочих грузов.
Соответствующие насадки идут на все чертежи мотоблока при условии, что они представлены одним и тем же производителем.
Самодельный четырехколесный мотоблок
Многие с целью экономии переделывают обычный мотоблок в мини-трактор с помощью подручных средств. Но в этом случае без технического склада ума, внимательности и сообразительности не обойтись. Нужно хорошо разбираться в том, что делаешь. Этапы создания дизельного мотоблока в мини-трактор на 4 колесах
- Создаем раму в форме трапеции путем сваривания прокатного щвеллера. Далее делаем в ней отверстия для других механизмов.
- Привариваем по углам к раме уголки. Они будут выполнять роль стойки и подрамника. Их соединяем в верхней части.
- Монтируем на раму задний мост. В случае создания полноприводного агрегата нужно будет смонтировать еще и передний мост.
- Монтируем движок.
- Устанавливаем коробку передач. Она обязательно должна быть направлена в сторону водителя. Это позволит сделать управление мотоблоком удобным, простым и комфортным.
- Монтируем рулевое управление.
- Привариваем фаркоп.
- Устанавливаем бак, электросистему и тормозную систему.
С помощью таких шагов вы сможете создать самостоятельно четырехколесный мотоблок из подручных средств. С таким оборудованием ваша работа на участке будет намного комфортней и легче.
Минитрактор переломка из мотоблока
Прежде чем приступать к работе, необходимо определить, на каком участке будут производиться работы с помощью мототрактора. Для обработки плотной и сухой почвы нужен тяжелый культиватор, поэтому двигатель должен обладать достаточной мощностью, а основание в виде рамы должно быть прочным, чтобы выдерживать вес всех узлов и дополнительную нагрузку при работе.
Для того, чтобы сделать минитрактор переломка своими руками, необходимо следующее:
- колеса
- навеска
- рулевой механизм
- педали
- водительское кресло
- мотоблок
- металлические трубы
- инструменты (дрель, болгарка, сварка)
Само название «переломка» указывает на особый тип рамы: она состоит не из цельного отрезка металлопрофиля или трубы, а разделена на две части. Такая конструкция увеличивает мобильность устройства, позволяет использовать минитрактор с прицепом.
Чертежи и размеры рамы:

Узел перелома можно изготовить из передней ступицы от любого автомобиля. Для крепления колес необходимо использовать укороченные мосты. Фото и видео с подробным разбором того, как правильно укоротить мосты, можно легко найти в интернете.
Для мини-трактора подойдет мотоблок с одноцилиндровым дизельным двигателем, который отличается экономичностью. Такой мотоблок лучше устанавливать спереди, что обеспечивает равновесие всего оборудования при эксплуатации.
Как это сделать
Пожалуй, самым интересным вариантом самостоятельной сборки является минитрактор переломка 4х4 самоделка,
который изготавливается на основе мотоблока. Вообще, это довольно распространенный метод сборки минитрактора, что доказывает его эффективность и работоспособность в процессе эксплуатации.
На видео самодельный мини трактор с двигателем мотоблока.
Внешне такая конструкция выглядит довольно громоздко, но внутреннее содержание полностью пропорционально, т.е. каждая деталь находится на своем месте, в точности подогнанная под размеры и параметры. Рассмотрим конструктивные особенности более подробно:
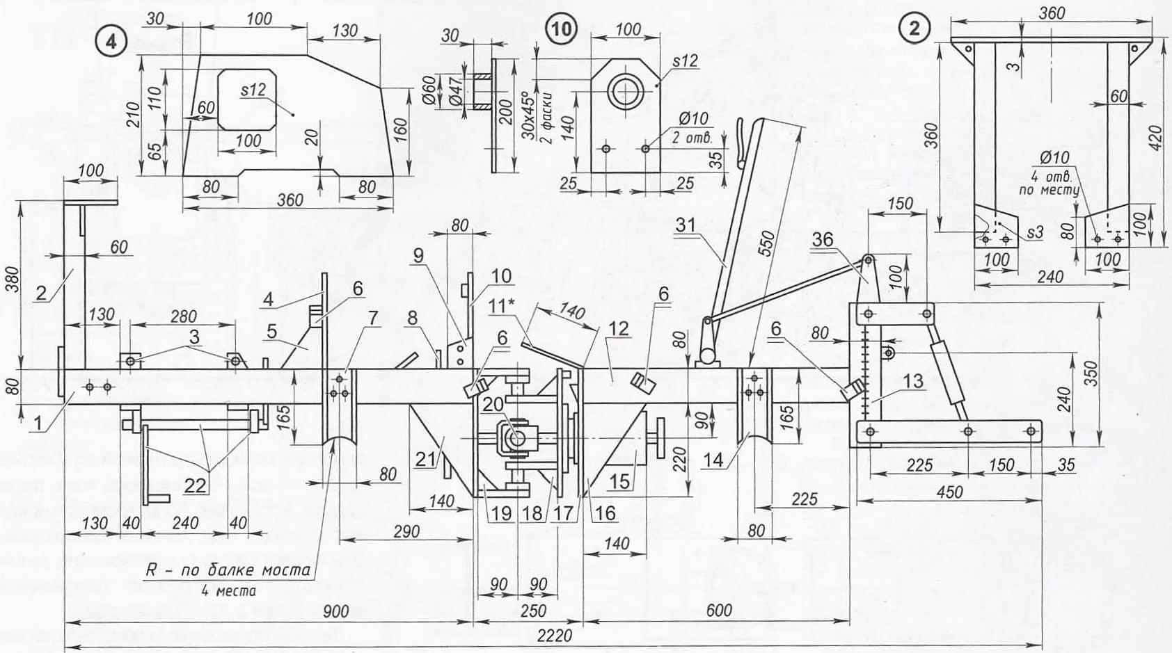
Чертеж 1
Фото чертежей узлов
- Рамная конструкция будет состоять из двух составляющих – лонжеронов и траверс. Лонжероны изготавливаются из трех составляющих. Передняя часть будет изготовлена из швеллера №10, последняя будет выполнена из стальной трубы, имеющей параметры 8×8 см.
- Задний траверс будет изготовлен из швеллера №16, а передний – из швеллера №12. Поперечины изготавливаются аналогично. В принципе, все минитрактора самоделки полноприводные имеют схожую конструкцию рамы, с теми же техническими параметрами.
Двигатель
- В качестве двигателя можно использовать практически любой силовой агрегат, мощности которого будет достаточно для осуществления сельхоз работ. Идеальным вариантом, в данном случае, будет использование 4-тактного дизельного двигателя, имеющего водяное охлаждение.
- Коробку передач и раздаточную коробку вала отбора мощности можно взять с автомобиля ГАЗ-53. Сцепление подойдет от ГАЗ-52.
- При соединении сцепления и двигателя могут возникнуть определенные проблемы. Придется заново изготовить маховик мотора, а также сделать новый кожух корзины сцепления, для подгонки её под двигатель. Маховик стачивают на токарном станке, срезая заднюю область, а также вытачивая дополнительный пролет в середине.
- Вообще, самоделки минитрактора подразумевают подгонки под определенные детали, поэтому стоит быть готовым к тому, что придется обратиться к токарю для обтачивания некоторых комплектующих.
- Мост устанавливается в конструкцию практически без изменений. Крепится он к раме с помощью четырех стремянок.
- В качестве колес можно использовать аналогичные, взятые с легковых автомобилей.
- Дело в том, что использование меньшего диаметра может спровоцировать проваливание агрегата в землю, а использование большего диаметра приведет к невозможности совершать те или иные маневры.
- Схема ходовки минитракторов и миниавто самоделок, представленная ниже, показывает наглядно принцип расположения колес на осях, а также их крепление к раме.
- Для повышения маневренности самоделки, можно установить на руль гидроусилитель. Взять его можно со старой техники, либо собрать собственноручно. Для этого нам понадобится масляный насос, приводимый в работу двигателем.

Водительское сидение
Немаловажным этапом работы будет являться расположение водительского сиденья. Располагать его нужно таким образом, чтобы руль не упирался в колени водителя, т.е. не мешал свободному управлению устройством.
Самоделки минитрактора переломки имеют очень важное преимущество – они обладают очень хорошими показателями маневренности. Конечно, такой метод сборки немного сложнее, чем альтернативные, но это определенно стоит затраченных усилий
Вообще, в данном способе сборки очень много комплектующих берется от старых отечественных автомобилей. Например, рулевая рейка может быть заимствована от старых «Жигулей», то же самое можно сказать и о барабанном тормозе – он также может быть взят с поддержанного авто.
Мотоблоки на четырех колесах
Мотоблоки стали неотъемлемой частью многих сельских жителей, фермеров и дачников. Несмотря на их эффективность в работе и быстроту обработки почвы разных типов, все же один небольшой недостаток остался. Хочешь или нет, но таким агрегатом весом в среднем в 100 кг нужно управлять, следуя за ним сзади. Да, это конечно легче чем все делать вручную, но хочется же облегчить такую работу совершенно. Поэтому владельцы таких агрегатов стали активно переделывать мотоблоки в мини-трактора, а производители в скором времени подключились и начали выпускать дизельные усовершенствованные мотоблоки не на 2, а на 4 колесах.
Сейчас мы познакомимся с данными агрегатами более детально и расскажем обо всех их преимуществах и недостатках.
Зачем делать мотоблок своими руками?
Итак, какие вообще есть плюсы у мотоблока, изготовленного собственными руками? Во-первых, он будет оказывать огромную помощь при обработке (в частности, вспашке) земли и уменьшит время и трудозатраты.

К тому же, если вы сможете сделать из него вездеход, то это поможет перемещаться на большие расстояния и в самые труднодоступные места. К тому же, топлива он потребляет довольно мало (5 литров хватает на пол дня интенсивной работы).


При должном усердии самодельное устройство по своим характеристикам почти не будет отличаться от дорогого импортного.
Сборка мотоблока с нуля
Если вы собираетесь сконструировать полностью весь мотоблок своими руками или даже целый минитрактор, перед началом работ стоит подумать о целесообразности реализации такого проекта. Современный рынок может предложить пользователю множество моделей мотоблоков отечественного и китайского производства, чьи характеристики позволяют проводить работы низкой и средней трудности. При этом цена такой техники вполне доступна для множества пользователей. Так что проект по созданию своего мотоблока должен иметь такие преимущества:
- низкую стоимость;
- возможность использования при сборке старых запчастей от техники, автомобилей или мотоциклов;
- повышение характеристик в сравнении с заводским аналогом;
- дополнительный функционал.
Проект стоит реализовать, если хотя бы 3 из перечисленных пунктов были соблюдены. В противном случае задумка не стоит затрат и проще купить готовый мотоблок, даже б/у с последующим обновлением деталей.
Теперь о конструкции. Нужно найти чертеж, по которому будет производиться сборка самоделки. В чертеже будут указаны основные детали, особенности их монтажа, а также способ изготовления креплений для запчастей. Без документации невозможно будет воплотить проект, поэтому первостепенная задача — найти самый подходящий чертеж. После этого можно начинать подбор материалов.
Это интересно: Лучшие российские и китайские мотоблоки с валом отбора мощности — все нюансы
Пневмоход и болотоход

Болотоход – транспорт с высокопроходимостью. Агрегат шикарно показал себя на топких территориях, мелководьях, илистых и болотах. Такой транспорт актуален у тех, кто часто ходит за город, туристов, которые преодолевают сотни километров сложного бездорожья. Конструирование самодельных болотоходов такое же, как и при изготовлении квадроцикла или караката. Пневмоход – вид авто, разработанный в 50 гг. прошлого столетия.
На заметку!Пневмоходы серьезно модернезированы. В некоторых моделях 6 колес, тогда как в стандартных на 4.
Условно такой транспорт можно назвать мотоблоком на пневматических колёсах. Понятно, основным отличием пневмохода от других самодельных моделей из мотоблока является база колес. Шины низкого давления за счёт малого усилия на дорогу дают возможность избежать прогрузки, буксовки, неприятностей.
Как сделать мотоблок 4×4 своими руками
Многие мастера самостоятельно могут изготовить такое устройство, если имеют все необходимое для этого. В данном случае нет ничего существенно трудного, требуется лишь подготовить определенные приспособления, а также соединить их впоследствии в единый механизм. Рассмотрим более детально, что требуется для изготовления устройства:
- Прежде всего, требуется найти соответствующий двигатель, так как это основной компонент такой техники.
- Также для обустройства потребуется сварить раму, для этого можно использовать обычные металлические листы и трубы небольшого диаметра.
- Обязательно требуется подготовить колеса (в данном случае потребуется 4 цельных элемента равного радиуса).
- Все остальные элементы (привода, передаточные механизмы, элементы подвески и трансмиссии, также необходимо подготовить или купить при необходимости).
- Отдельно следует достать ручной или электрический стартер от любого похожего оборудования с двигателем внутреннего сгорания.
- Вся работа начинается с оснащения рамы, ее необходимо сделать под размеры двигателя, а также 4 ведущих колеса.
- После устанавливаются элементы подвески и рукоять управления, собранная их металлической трубы.
- На последующем этапе создания необходимо установить элементы передачи крутящего момента, а также трансмиссию.
- Далее поверх всего монтируется соответствующий двигатель, и осуществляется подключение силовой установки.
- После следует установить систему подачи топлива и любую емкость, куда будет заливаться бензин или дизель.
- В самом конце навешиваются элементы запуска (стартер, свеча зажигания, а также компоненты питания при необходимости).
В этом видео вы узнаете, как сделать мотоблок 4х4:
После этого требуется установить колеса и совершить пробную обкатку собранного приспособления. Стоит отметить, что рекомендуется проводить пробные тесты на каждом этапе сборки, чтобы выявить работоспособность собранного приспособления.
Важно! На начальном этапе сборки немаловажно позаботиться об оснащении мотоблока вспомогательным оборудованием, а также его подсоединении (при необходимости плуги, бороны, фрезы и иные компоненты можно купить либо смастерить самостоятельно)
Минтрактор из мотоблока Нева
Техника под маркой Нева оснащается рядом двигателей, развивающих 5,5-10 л.с. Двигатели комплектуются коробками передач с двумя или четырьмя передачами (плюс реверс). Привод колес выполняется от редуктора комбинированной схемы (шестерни и цепь). Для самодельного трактора из мотоблока «Нева» предпочтительнее использовать модели с мощным двигателем.

В схеме конструкции мотоблоков Нева имеется штатная сцепка, которая предназначена для навески плуга, бороны и других сельскохозяйственных устройств. Сцепное устройство переносится на самодельный трактор без изменений. Постройка тракторов на базе «Невы» выполняется по чертежам, которые публиковались в периодических изданиях.
Среди конструкций, созданных своими руками, имеется схема, основанная на заимствованной передней подвеске и рулевой рейке от малолитражного автомобиля Ока. Для изготовления заднего моста применяется узел от Нивы.
Заключение
Как мы видим, существует достаточно много способов изготовления самодельных минитракторов (к примеру самодельный трактор переломка 4 4 своими руками). При этом, можно конструировать их фактически «с нуля», сваривая нужные детали конструкции, либо переделать под эти цели мотоблок. Благо, их конструкция во многом схожа, что дает такую возможность.
На просторах интернета можно встретить достаточно большое количество не только подробных чертежей с указанием разметки, но и видео, наглядно демонстрирующее такие агрегаты в работе.
Посмотрев их, можно убедиться в том, что принцип действия у них полностью идентичен покупным аналогам, поэтому самостоятельное изготовление минитракторов становится все более целесообразным. И не менее полезными станут изготовленные вами элементы дополнительного оборудования (например фреза на трактор).
Возможно вас заинтересует статья про минитрактор из оки.
Так же рекомендуем ознакомиться со статьей про опрыскиватель своими руками.




































