Правила выбора
В специализированных магазинах имеется множество разновидностей шин, предназначенных на разные модели инструментов. При выборе шины для бензопилы нужно ориентироваться не только на подходящие размеры, но и фирму – производителя.

Шины от дорогого бренда гарантированно прослужат гораздо дольше, чем изделии от неизвестной фирмы. Дорогие изделия изготавливаются из стали хорошего качества, что гарантируют хорошую износоустойчивость и минимальный шанс получить бракованную шину.

Нужно с полной ответственностью относиться к выбору комплектующих для бензопил так как некачественные детали могут привести как к поломке инструмента, так и к травмам работника.

Если Вы впервые самостоятельно покупаете направляющие шины, то кроме замера режущей длины необходимо сделать фото шины для бензопилы, которая была установлена до этого – это поможет консультантам правильно подобрать изделие.


Техника на грани фантастики
В Советском Союзе долгое время ходила история о заключённом, который смог улететь с зоны на сделанном из бензопилы самодельном вертолёте. На самом деле это всего лишь красивая легенда, хотя и она имеет под собой реальные научные разработки.
В 1971 году группа студентов Московского авиационного института представила учёному совету новую необычную разработку. Это была летающая одноместная платформа с восемью двигателями от бензопилы «Дружба», синхронизированными в одном блоке. Опытные экземпляры этих разработок неоднократно показывались на различных выставках. Несмотря на это, серийно такие модели так и не были выпущены.
Мечта о небе для любителей конструировать что-либо из бензопил пока остаётся мечтой. Тем не менее, попытки сделать ранцевый одноместный вертолёт с использованием двигателей от «Урала» или «Дружбы» не прекращаются.
https://youtube.com/watch?v=NaN-112KVZ8
Originally posted 2018-07-04 07:16:12.
Приспособление превращает бензопилу в снегоуборщик
В феврале весна уже готовится вступить в свои законные права, а коварная зима борется за свое место, выпуская на улицы метели и вьюги. А значит, еще не время убирать на хранение лопаты и снегоуборщики. Участник нашего форума Step139 предлагает проводить зиму как следует, изготовив самодельный снегоуборщик на базе бензопилы «Урал-2».
Step139 живет на Байкале, где снега в холодное время года такие же бескрайние, как само знаменитое озеро. Раньше форумчанин очищал участок с помощью обычной алюминиевой лопаты, но однажды, после масштабного снегопада, крепко задумался над тем, чтобы приобрести спецтехнику. Электрический вариант отпал сразу из-за необходимости носить за собой кабель. Бензиновый и несамоходный агрегат было неудобно перемещать по крутым склонам участка. Самоходная же модель оказалась достаточно тяжеловесной, и, к тому же, ее нельзя было спускать по ступенькам.
Последними факторами, склонившими мужчину к изготовлению собственного снегоуборщика, стали тяжелые почвы – суглинок со щебнем и удаленность от города: в случае поломки, магазинную технику пришлось бы везти в ремонт за 70 километров. Агрегат он решил делать максимально простым, полностью железным, но в то же время легким и ремонтопригодным.
Для изготовления самодельного снегоуборщина форумчанину потребовалось:
• бензопила «урал-2», которая лежала без дела в гараже с далеких советских времен;
• лист металла 1400х400 мм и толщиной 2 мм (лопасти и лопатки);
• лист нержавейки 700х800 мм, 1 мм (кожух ковша);
• вал d20мм l =800 мм;
• пара подшипников d48/20 мм, запрессованных с двух сторон в трубу;
• две ненужных дуги (квадрат 20х20 мм) и две перекладины (тоже 20х20) от теплицы (рама);
• гайки, шайбы, куски уголка 35 мм и металла, полоска 2 мм шириной и 40 мм длиной понадобилась для крепления кожуха к боковым стенкам;
• венец задней звезды от мотоцикла «минск» (большая ведомая звезда);
• звездочка от мотоцикла «восход» (ведущая, маленькая);
• цепь от мотоцикла «минск», «восход»;
• тросик тормоза от снегохода;
• курок для газа;
• резиновые ручки от снегохода.
Почти половину из этого списка участник FORUMHOUSE нашел у себя в гараже, остальное пришлось докупить в магазине – на это Step139 потратил 801 рубль.
Просматривая ролики о снегоуборщиках в Интернете, Step139 сделал вывод, что чем короче рама и выше ручки, тем больше вероятность зарывания шнека. Этой ошибки форумчанин решил избежать при конструировании своего агрегата.
На форуме народный умелец привел очень подробные математические расчеты и даже опубликовал их черновик. Изготавливать спиральную лопасть он решил диаметром 300 мм и шириной 220 мм с шириной рабочей части 70 мм. Для этого форумчанин использовал лист металла толщиной 2 мм – болгаркой и лобзиком выпиливал из него кольца, а затем с помощью тисков растягивал их в спираль. Эта работа оказалась тяжелой в физическом плане.
Следом из этой же стали Step139 изготовил лопатки, вырезал из металлического уголка пластины и приступил к сборке шнека в единое целое. На ровной поверхности приварил лопатки перпендикулярно к валу. От лопаток отмерил 220 мм и приварил две боковые пластины. После этого струбцинами зажимал лопасти к лопаткам и пластинам и все это проваривал. Центральную перемычку каждой лопасти при этом надо плотно прижать к валу, а перемычки у каждой пары лопастей – разместиться строго друг напротив друга и на расстоянии 110 мм от боковых пластин и лопаток, т. е. посередине. Из металла 4 мм форумчанин вырезал диск диаметром 110 мм и прикрутил к нему болтами венец задней звезды от мотоцикла «Минск». Затем обрезал вал под размер с учетом зазоров с боковыми стенками.
В поисках металла для боковых стенок Step139 обыскал всю округу. Была даже мысль порезать на куски общественную помойку, но в итоге, металл все же нашелся. А так как самая сложная часть работы – изготовление шнека – была уже проделана, дальше события развивались быстро: форумчанин изготовил кожух ковша, установил шнек, двигатель с цепью и оставшиеся детали. Свой снегоуборщик участник FORUMHOUSE начал собирать за неделю до Нового года, а уже в январе провел первые испытания.
Электростанция
Для мобильной электростанции мощностью до 5 квт существует проверенное временем решение: генератор – самоделка на основе мотора от пилы Дружба или Урал. Их активно используют в экспедициях и на удаленных лесозаготовках. Устройство включает в себя стальную раму, сваренную из уголка, на которой закреплены двигатель, генератор и влагозащищенная электрораспределительная коробка с розетками для подключения электрооборудования или удлинителя. Через редуктор крутящий момент передается на вал генератора.
Для низкооборотных генераторов существует вариант электростанции-самоделки с ременной передачей. Такая конструкция отличается меньшими габаритами.
Как заставить пилу «Дружба» служить в другом виде?
Если вы горите желанием дать вторую жизнь такой пиле, то от вас потребуются некоторые навыки и знания конструирования. Ведь работать придётся с бензиновым агрегатом, а иногда – самостоятельно вытачивать детали для нового устройства на токарном станке. Хотя для этих целей может привлекаться знакомый токарь. Либо деталь может быть сделана на станке с ЧПУ.
Важно также понимать, что переделка пилы иногда не принесёт ожидаемой мощности. Например, мотокультиватор, которому «достался» двигатель от «Дружбы», вряд ли сможет запросто справиться с довольно большим огородом
Но постепенно с его помощью можно будет обработать небольшой участок. Многие умельцы наверняка смогут соорудить такой мотокультиватор, в котором энергию двигателя будет передавать шестерёнка на ведущее колесо.

Часто в деревне можно увидеть ещё рабочую косилку, для которой тоже была переделана бензопила «Дружба». Этот агрегат в пору сенокоса эксплуатируется без остановок длительное время и работает при этом не один сезон. Для создания такой косилки из конструкции пилы удаляется шина вместе с звёздочкой привода и цепью. При этом пила быстро переделывается в исходное состояние и способна запросто зимой резать дерево.
Если у вас, как говорится, ровные руки и есть небольшой садовый участок, то приобретать мотоблок вовсе не обязательно. Ведь обслуживание, а тем более, — покупка, — дело довольно дорогостоящее. Однако при наличии старой пилы «Дружба» или возможности её покупки за небольшую сумму, сделать мотоблок своими руками вполне возможно. Сам принцип такой переделки заключается в использовании двух звёздочек в качестве системы передачи усилия. Подобный самодельный мотоблок вполне сможет быть использован при работах на небольшом садовом участке.

Всем известна русская зама, которая часто преподносит настоящие «сюрпризы» в виде обильных снегопадов. Если у вас в такой период возникают серьёзные осложнения с уборкой снега, то стоит задуматься о конструировании небольшого снегоочистительного устройства, основой для которого и может послужить старая бензопила «Дружба». Для такого снегоочистителя нужно будет сконструировать шнековый механизм. Чтобы он качественно выполнял возлагаемые на него обязанности, материал для его изготовления должен быть эластичным и прочным. Такие характеристики имеются у резины. В качестве основы для передвижения самодельного снегоочистителя могут быть использованы санки. Сваливать снег возможно при переоборудовании водопроводной трубы с определённым изгибом.
Иногда в хозяйстве требуется такое устройство, как пилорама. Конечно, подобное устройство больших размеров вряд ли кто-то будет устанавливать у себя на участке. В то же время мобильное устройство, способное быстро распилить ствол дерева по определённым размерам, может быть вполне востребованным. Поэтому пилорама из бензопилы «Дружба» тоже была реализована народными умельцами. Подобных устройств существует несколько типов. Различаться они могут в основном конструктивно.
Устройство бензопилы Дружба
Бензопилы советской марки Дружба начали выпускаться в 1955 году. Они характеризовались улучшенной, как для того времени, конструкцией. Преимущества заводского устройства и главные отличия инструментов Дружба от тогдашних аналогов заключались в высокой плотности установленных деталей и свободному доступу к главным из них. Это значительно упрощало самостоятельный ремонт техники бренда Дружба и позволяло устанавливать новые запчасти даже в полевых условиях.
Основа штатной конструкции бензопил Дружба заключалась в тяговитом и оборотистом двигателе. Мощность силового агрегата зависела от модификации бензоинструмента. Устаревшие модели, как бензопила Дружба-2 , комплектовались двигателями с большим объемом цилиндра, но с меньшей мощностью. В отличие от них современные модификации оснащены экономичными ДВС с меньшими объемами встроенных цилиндров, но с более высокими мощностными параметрами.
В устройстве старых модификаций не предусматривались некоторые функции, которыми оснащены практически все современные модели. К примеру, бензопила Дружба-4 не укомплектована антивибрационной системой, механизмом облегченного запуска или узлом газораспределения. Тем не менее даже эти модели сегодня активно используются опытными садоводами и вальщиками.

 Привод старых модификаций марки Дружба включал редуктор , который играл основную роль в работе всего механизма. Элемент требовал постоянной смазки, которая облегчала его работу и не допускала перегрева при работе под повышенными нагрузками. В комплектацию новых бензопил Дружба редуктор не входит. Вместо него в заводское оснащение бензоинструментов включено зажигание, состоящее из барабана, возвратной пружины и 6-зубой ведущей звезды.
Для обработки древесины все модификации марки Дружба комплектуются режущими органами, состоящими из увеличенной шины и заостренной цепи. Они адаптированы для эксплуатации в сложных погодных условиях, поэтому могут выдерживать интенсивный нагрев и охлаждение без риска деформации и потери режущих свойств. Смазка гарнитуры в устаревших модификациях марки Дружба производилась вручную – чаще всего для этого использовалось отработанное масло. Производить эту процедуру требовалось примерно 1 раз на каждый час активной работы. В современных бензопилах этого бренда предусмотрена автоматическая смазка шины и цепи. Для этого в заводское устройство каждой модели включена масляная помпа.

 Бензопилы производства марки Дружба комплектуются прочными корпусами. В устаревших моделях корпуса изготовлены из стали – это делало цепные инструменты более тяжелыми и неудобными в эксплуатации. Еще одна типичная проблема тех модификаций заключалась в своеобразном исполнении рукояток. Они располагались сверху, что позволяло распиливать древесину только в поперечном направлении. Современные бензопилы этого бренда лишены старых недостатков. В комплектацию каждой из них входят ударостойкий пластиковый корпус и эргономично расположенные прорезиненные рукоятки.
Как сделать мопед из бензопилы или велосипед с мотором
Самодельный мопед из бензопилы вряд ли сравнится с промышленным вариантом прибора, но в качестве своеобразной взрослой игрушки он вполне сгодится. По большому счету приспособление представляет собой не мопед, а велосипед с двигателем от бензопилы. Это связано с тем, что чаще всего применяется именно старая рама от этого транспортного средства.

 Мопед с применением бензопилы сможет разгоняться до 30 км/ч.
На заметку! Более продвинутые умельцы берут не готовую раму от старого велосипеда, а самостоятельно изготавливают для этой цели сварную конструкцию из металлических труб или квадратного профиля. А вот основные узлы, включая подшипники, предпочитают использовать заводские.
Перед тем как поставить двигатель от бензопилы на велосипед, следует позаботиться о наличии деталей, таких как:
- рама;
- двигатель с бензобаком;
- редуктор с передаточным соотношением 18:1;
- амортизаторы;
- тормоза.
Любой двигатель на велосипед от бензопилы должен дополняться редуктором, чтобы была возможность регулировать вращение колес. Иногда вместо редуктора применяются зубчатые пары, соединенные между собой цепью от велосипеда. Если за основу брать горный вариант велосипеда, то здесь в большей степени подойдет редуктор с передаточным числом 1:15 или 1:20, дополненный вариатором. Главное преимущество горного велосипеда с мотором от бензопилы состоит в том, что в отличие от обычного устройства его получится разогнать до 30 км/ч.
Другим простым в исполнении транспортным средством считается карт из бензопилы, напоминающий упрощенную модель автомобиля, которая применяется в основном для кольцевых гонок. Прибор лишен цельного корпуса, в нем нет амортизаторов. Минимальное количество деталей позволяет облегчить конструкцию и обеспечить ему большую скорость передвижения.

 Для велосипеда понадобиться не только двигатель от бензопилы, но также и редуктор.
Рама чаще всего варится самостоятельно из металлопрофиля, а в качестве донора колес используются старые тележки. В качестве привода на заднюю ось применяют велосипедную цепь, а также понадобится рулевая трапеция. Чтобы собрать корпус, потребуется использование сварочного аппарата. Некоторые считают карт, выполненный своими руками, детским автомобилем с бензиновым двигателем, но нужно учитывать, что транспортное средство способно развивать приличную скорость.
Летательный транспорт на основе бензопилы
Применение бензопилы не ограничивается только наземным транспортом, но оборудовать с помощью одного образца полноценный летательный аппарат, способный поднять в воздух одного человека, довольно проблематично.
Мощности стандартного аппарата для этого не хватит, так как для такой конструкции потребуется не менее четырех двигателей от стандартных бензопил, функционирующих одновременно на максимальных оборотах.
Это важно! Оборудуя самодельный вертолет из бензопилы, крайне важно помнить о технике безопасности и изучить все необходимые правила эксплуатации такого аппарата, в противном случае возникает риск опасности для жизни.
Особенности конструкции снегохода и аэросаней
Снегоход из бензопилы считается одним из самых сложных самодельных приборов, потому как для его изготовления потребуется большое количество дополнительных деталей, среди которых:
- рама;
- корпус;
- гусеницы и передние лыжи;
- руль;
- управление, состоящее из ручки и сцепления.
Статья по теме:
Есть и другая сложность. Чтобы снегоход перемещался, его требуется оборудовать подвеской и трансмиссией, поэтому новичку с такой работой будет справиться непросто.
Создание снегохода из бензопилы своими руками начинают с несущей рамы, представляющей собой стальной профиль размером 20х20 или 20х30 см. За амортизацию задней подвески отвечает качающий рычаг, а за переднюю – рулевая вилка мотоциклетного типа.
Для изготовления снегохода из бензопилы потребуется приобрести много дополнительных деталей
Дополнительно снегокат с мотором своими руками дополняется центробежным сцеплением с клиновидным ремнем и цепью. Для усиления тяговой силы на вал гусеницы крепится шестеренка, диаметр которой превышает приводную деталь вала бензопилы. Для нормальной эксплуатации самодельного устройства требуется брать мотор, имеющий мощность не менее десяти лошадиных сил.
Более простым вариантом являются аэросани, которые имеют похожий способ использования, но представляют собой движущийся по снегу винтомоторный самолет. Ввиду упрощенной конструкции сани не отличаются большой грузоподъемностью, проходимостью и устойчивостью. Основные преимущества – простая конструкция и легкость изготовления. Вращающийся винт, установленный за спиной водителя, требуется закрыть при помощи защитного кожуха, выполненного из мелкоячеистой сетки. Управление осуществляется посредством поворота лыж, газового рычага и тормоза. Оптимальной мощностью мотора считается 5-6 лошадиных сил.
Самодельный велосипед с мотором
Народные умельцы выдумали множество вариантов, как переделать велосипед в мопед. Их смысл сводится к следующему:
- берется велосипед;
- к багажнику либо раме прикрепляется мотор с бензобаком;
- устанавливается редуктор (имеющий передаточное соотношение 18 к 1) и специальная передача;
- монтируются дополнительные амортизаторы;
- ставится тормоз.
Вместо редуктора используют две зубчатые пары, соединяющиеся друг с другом с помощью велосипедной цепи. За основу часто берут различные старые велосипеды (как на фотографии далее), а более современные (горные) модели используют значительно реже.

Самокат
Для усовершенствования лучше подходит самокат, у которого есть надувные колеса и присутствует ручной тормоз. Первое позволяет ему передвигаться по неровностям, второе — обеспечивает высокую тормозную способность.
 
Выполняют работы в такой последовательности:
- У бензопилы удаляют цепь, шину.
- Откручивают от коленвала центробежную муфту.
- Крепят к выходному валу двигателя и оси заднего колеса самоката звездочки от велосипеда.
- Размещают мотор сзади на платформе самоката. Соединяют их между собой болтами. Обе звездочки должны находиться в одной плоскости.
- Надевают на звездочки велосипедную цепь, подгоняют ее, удаляя лишние звенья.
- Присоединяют акселератор к одной из ручек самоката. Соединяют его с проводами, которые включают/выключают мотор. Вместо акселератора можно установить небольшую педаль.
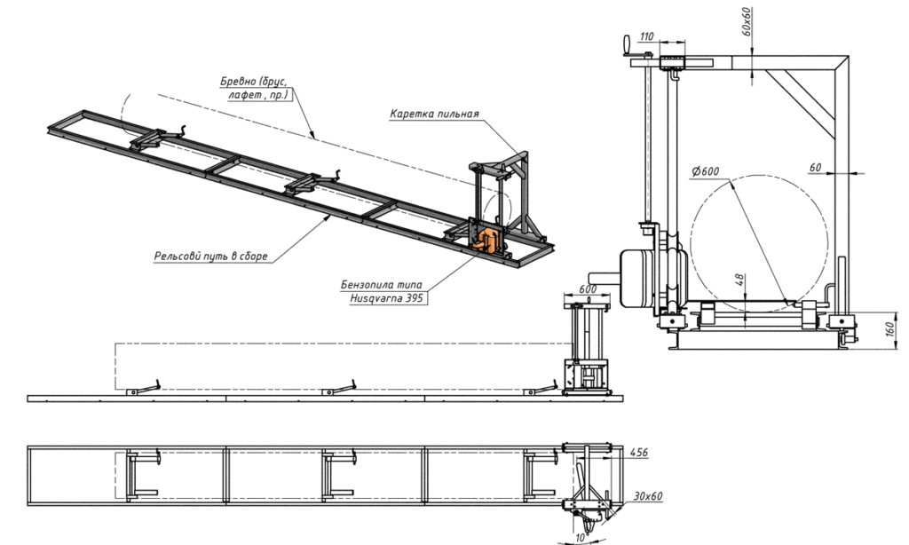
Как сделать пилораму из бензопилы: пошаговая инструкция с чертежами
Чтобы изготовить самодельную пилораму в домашних условиях, потребуется подготовить материалы:
- инструмент, оборудованный бензиновым или электрическим мотором;
- направляющие швеллеры с высотой полки до 150 мм (длина зависит от размеров будущей установки);
- специальный механизм для передвижения инструмента или заготовки;
- стальной уголок, применяемый для усиления конструкции и изготовления фиксаторов заготовки;
- чертежи и схемы конструкции;
- сварочный аппарат;
- набор инструмента для соединения компонентов.
Последовательность шагов при изготовлении самодельной пилорамы шинного типа:
- Разметить швеллеры или иной металлический профиль для изготовления основания. Детали пилорамы свариваются между собой дуговой сваркой, для повышения жесткости и размещения фиксаторов бревна применяются дополнительные поперечные связи.
- Изготовить вертикальную раму, которая перемещается по основанию на роликах или шариковых подшипниках. К основному профилю устанавливаются дополнительные раскосы, повышающие жесткость конструкции. Опоры оснащены регулировочными болтами, позволяющими выбрать зазоры между внешней частью ролика и направляющей. Ширина рамы соответствует длине шины, установленной на пиле.
- Смонтировать на вертикальной раме механизм для регулировки положения пилы. В изделии нужно использовать специальный винтовой зажим, способный удержать пилу во время работы. Конструкция струбцины должна противостоять вибрациям и возможным ударным нагрузкам.
- Установить узлы, отрегулировать взаимное положение элементов и провести пробную распиловку. В процессе эксплуатации возможны поломки, которые потребуют доработки конструкции и введения дополнительных деталей, фиксаторов или регуляторов.
Описанный алгоритм изготовления пилорамы из бензопилы своими руками не является единственным вариантом конструкции. В свободном доступе имеются чертежи установок, созданных разными авторами, которые отличаются конфигурацией узлов или способами регулировки положения. Конструкторы снимают свои изделия на видео, которое можно посмотреть на специализированных сайтах.
Например, упрощенная самодельная пилорама из бензопилы состоит из отрезка швеллера, на котором установлена переходная плита с закрепленным инструментом. Установка монтируется на деревянный брус (он же является и заготовкой), уложенный на опоры. После каждого запила инструмент перемещается на расстояние, равное толщине изготовляемой доски. Недостатком конструкции пилорамы является неустойчивость, при опрокидывании установки существует риск травмирования оператора.
Дисковые установки собираются на базе электрического двигателя, допускается применение бензинового агрегата для вращения диска. Мотор крепится на раме через штатные точки крепления, в основании оборудования находится прямоугольный или квадратный узел, изготовленный из швеллера. В конструкции предусматривается стальной защитный кожух, закрывающий верхнюю часть диска. Рекомендуется установить малогабаритный переключатель, не позволяющий включить двигатель с открытым щитком (только для модификации с электрическим двигателем).
Для бытовых пилорамных установок рекомендуется использовать стальные дисковые пилы диаметром 500-600 мм. Рабочий элемент монтируется на выходной валик ротора двигателя, допускается использование повышающего редуктора с ременным приводом. Регулировка натяжения производится смещением корпуса мотора на основании. При изготовлении элементов конструкции рекомендуется располагать рабочую кромку диска на минимальном расстоянии от основания. Встречаются конструкции со специальным пазом в основании, предназначенным для вращающегося диска.




Советы профи
Профессионалы, имеющие достаточный опыт для обучения начинающих резчиков, отмечают некоторые нюансы резьбы по дереву. Их должен знать каждый новичок в этом интересном занятии:
- Большие заготовки обрабатываются бензопилой с большей мощностью и размером шины. Так, можно использовать пилу с мощностью до 2,5 киловатт и шиной в 50 см. Это позволит быстрее убирать огромное количество ненужного деревянного материала.
- Стоит учитывать то, что карвинг – отнюдь не быстрый процесс, поэтому бензопила, как и вы, должна выдержать длительную работу. Этому помогает антивибрационная система, имеющаяся почти во всех бензопилах, которая позволяет защититься от вибрационных волн и делать более плавные, непрерывные движения.
- Профессионалы отмечают, что лучшие породы для карвинга по дереву – вяз, дуб, лиственница, клен.
Важно! Все породы ведут себя по-разному во время использования, поэтому для лучшей работы нужно опробовать все виды древесины, чтобы оценить максимальную комфортность конкретно для себя
Создание культиватора
Своими руками, при желании и необходимости, есть возможность создавать и сельскохозяйственную технику. Самым большим спросом у землевладельцев пользуются мотоблоки (после трактора, конечно). Особенно у тех, кто обладает небольшими участками земли.
При сборке мотоблока (культиватора) из бензопилы важен вопрос мощности, которой должно быть достаточно для того, чтобы весь блок двигался и при этом разрыхлял землю. Для такой задумки как нельзя лучше подойдёт бензопила марки «Урал» или «Тайга».
Самодельный мотоблок собирается приблизительно (точность тут неуместна) так:
- делается рама;
- крепится к ней мотор с бензобаком;
- привариваются полуоси (на которых будут держаться колёса);
- к полуосям крепится редуктор с культивационными ножами, и с помощью шестерней и цепей передаём вращение от мотора к редуктору.
В итоге получится абсолютно работоспособная техника. Причём в сравнении рукотворного мотоблока с каким-либо купленным экономия очевидна.
https://youtube.com/watch?v=BDNxEYx3pGI
Подобным образом, если есть желание, вполне реально смастерить массу различных полезных в хозяйстве механизмов:
- болгарку;
- насос;
- бур;
- лебёдку;
- моторную лодку из весельной,
- и много всего другого.
Для того чтобы начать делать что-либо своими руками, необходимы две вещи: поверить в свои силы и сосредоточиться на конечном результате. Далее всё пойдёт как по маслу. Ещё один важный момент для «докторов техники»: не опускать руки в случаях, когда что-то идёт не так. Всегда можно собраться, начать с самого начала и сделать всё правильно!
https://youtube.com/watch?v=e6dPMfrGZ2Q




































