Подъемный кран своими руками: сборка
При помощи редуктора на червячной основе формируется грузовая лебедка. Он же может обеспечить создание ручного привода, упрощающего сборку стреловой лебедки. Основанием для винтовых выносных частей являются строительные опоры. Все элементы, представленные выше, составляют основу конструкции. Помимо этого, нужны барабаны для лебедок. Стоит отметить, что их самостоятельное изготовление не всем под силу, так как процесс отличается сложностью и трудоемкостью, а также необходимостью в специализированном оборудовании и опыте проведения подобных работ.
Выходом из ситуации становятся роторы от электродвигателя, которые можно использовать в роли основы, и существенно упростить поставленную задачу
Особое внимание должно уделяться соответствию размеров применяемых элементов и будущего устройства. Для этого производятся дополнительные замеры при помощи линейки

Устройство и принцип работы
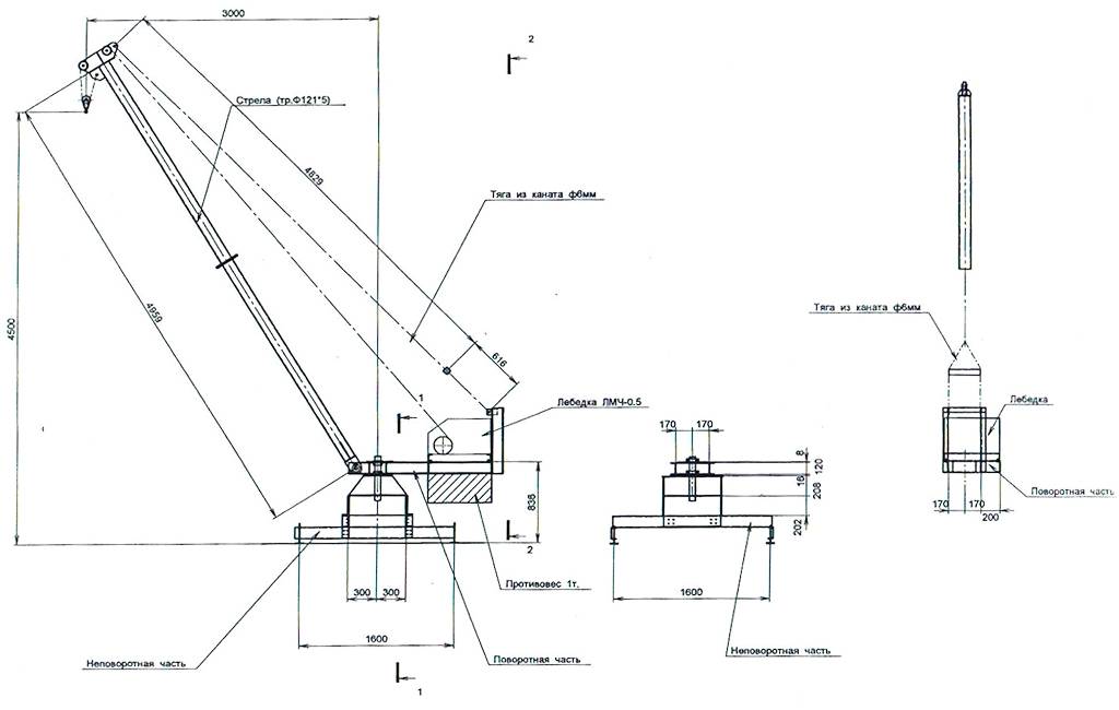
Оборудование является разборной конструкцией, которую доступно смонтировать на любом подходящем строительном участке, где наклон не превышает показателя 3°. Разработано несколько модификаций механизма такого устройства, каждая из которых выполнена по ГОСТ1451-77.

Сборочными узлами таких грузоподъемных механизмов являются:
- Поворотная рама, оснащенная приводом.
- Выносная стрела.
- Передвижная рама.
- Оснащенная крюком подвеска.
- Механизм для обеспечения конечного останова.
- Подъемный канат.
- Противовесы в виде пригруза с контргрузом.
- Растяжка для страховки.
- Лебедка.
- Концевой выключатель.
- Специализированное электрооборудование.
Любая модификация такой спецтехники — сборно-разборная, модульной конструкции. Каждый агрегат имеет ходовую раму в виде тележки, являющуюся опорой устройства. Она обычно оснащается для передвижения по поверхности четырьмя колесами.
На этой платформе смонтирована конструкция, обеспечивающая вращение стрелы, которая поворачивается приводом с ручным управлением либо электрической тягой. Прямо на такой поворотной раме закреплена стрела, имеющая крюковую подвеску, а также контргруз, предотвращающий опрокидывание при перемещении тяжести и электрическая лебедка.
Крановая стрела бывает стандартного исполнения (тогда она неразборная), хотя чаще выпускают сборно-разборный вариант. При заказе оборудования покупатель самостоятельно определяет, необходима ли ему комплектация, имеющая противовес.
Чтобы обеспечить устойчивость всей конструкции, выполняют соединение стрелы с закрепленной на тележке поворотной платформой оттяжками (их именуют талрепы), одновременно со стальным предохранительным канатом.
Подъем любого груза выполняется лебедкой, которая натягивает трос через блок, смонтированный на самой стреле. Также на ней установлен особый механизм для аварийного конечного останова, не позволяющий поднимать выше определенной высоты груз. Барабан лебедки оснащается такой длиной троса, которая необходима для обеспечения работы установки.

Крановщик, управляющий оборудованием, находится с ним рядом. Он организует работу спецтехники, используя выносной механизм управления — кнопочный пульт. При ручном варианте поворота необходимо оказывать на рычаг усилие в 187 Н. Из-за этого модели, имеющие увеличенную грузоподъемность. Оснащают опцией поворота с помощью электропривода. Чтобы обеспечить подачу электроэнергии, необходимо подключать установку к трехфазной сети.
Подъемник типа Пионер
Данный агрегат отличается небольшим весом и высокой мобильностью. Он собирается и разбирается просто и быстро. Его можно привезти на место даже в «Газели», выполнить работу, а потом разобрать и увезти. Причем устанавливать кран вполне возможно на земле, в котловане, на крыше, а также на строительных перекрытиях.
Делают подъемники Пионер многие предприятия, специализирующиеся на производстве всевозможного грузоподъемного оборудования. Можно упомянуть отечественную компанию «GRAS», ООО «Импульс» из Кирова, ООО ПКФ Челнинскую Крановую Компанию.
Выпускается три основных модификации крана, грузоподъемность которых может составлять, соответственно, 0,5, 0,75 и 1 тонну (это максимум). Стрела бывает цельной или разборной, а опорная рама, служащая основанием агрегата, может снабжаться колесами или иметь стационарное исполнение.
Применение
Данный стреловой кран способен перемещать любые предметы, интенсивно трудясь при жаре в сорок градусов и при морозе до минус сорока. Он легко доставит на крышу, а также на любой из этажей стройматериалы, монтажные конструкции, необходимое на данный момент оборудование, инструмент и инвентарь.
Во время выполнения кровельных работ агрегат, снабженный удобной поворотной стрелой, поможет в короткие сроки подать на крышу нужный объем мастики, рулонной кровли или утепляющего материала.
На производственных предприятиях кран Пионер часто используется для проведения работ ремонтного характера, а также для быстрой погрузки и выгрузки любых материалов, станков, металлических конструкций.

Пользуются подъемником типа пионер и торговые предприятия, а также оптовые склады. Подъемник поможет быстро отгрузить покупателю тяжелые рулоны линолеума, паллеты с керамической плиткой, различные пиломатериалы.
Плюсы и минусы
Преимущества:
- Простая и максимально надежная конструкция, удобство эксплуатации.
- Быстрота сборки и разборки – не более получаса.
- Высокая мобильность, которая позволяет использовать кран даже на дальних объектах.
- Нет надобности регистрировать подъемник в Ростехнадзоре.
- Перед работой не нужно изготавливать приямок, а при монтаже не требуются анкера.
Возможность поворота стрелы на 360 градусов делает простым подъем и опускание груза.
Низкая стоимость, небольшой расход энергии.
Недостатки:
- Гибко подвешенный груз не всегда создает удобные и безопасные условия.
- Максимальный вес, который способен поднять кран – от 500 до 1000 килограммов (в зависимости от модификации).
Устройство
Конструкция этого разборного механизма предельно проста. Кран состоит из следующих элементов:
- Основная опорная рама (разборная, на болтах, может стоять на колесах), на которой крепится вторая рама – поворотная.
- Страховочные растяжки, грузовой канат, контргруз, электрический привод.
- Поворотная стрела (которая может быть цельной или разборной, на болтах), оснащенная гуськом.
- Механизм конечного останова (который располагается на конце стрелы), путевой выключатель (он установлен на механизме, осуществляющем подъем).

Кран Пионер-1000 (380В / без к/г)

Кран Пионер-1000 (380В / без к/г) предназначен для подъема, перемещения, удержания на высоте грузов весом до 1000 кг. Его можно устанавливать на земле и на перекрытиях объектов. При условии монтажа на земле оборудование поднимает груз на высоту до 6 м, при установке на перекрытиях высота подъема составляет 60 м.
Сфера применения:
- строительство частных домов, коттеджей, малых архитектурных форм;
- возведение конструкций высотой до 60 м;
- логистика, погрузочно-разгрузочные операции на производствах и промышленных объектах;
- реконструкция, ремонт, интервальное обслуживание сооружений, т.д.
Кран адаптирован к условиям российского климата.
Он стабильно работает при температуре от – 40 до +45 С. Его можно использовать в помещениях и на открытых площадках, но при условии, что влажность воздуха не будет превышать 18%, а скорость ветра – 12 м на секунду. Монтаж оборудования проводится на высоте над уровнем моря до 1000 м на горизонтальной поверхности с максимальным уклоном до 3 градусов.
Общее описание, комплектация
Кран Пионер-1000 (380В / без к/г) представляет собой разборную конструкцию, состоящую из ходовой и поворотной рамы, двух лебедок с электроприводом, подвески, стрелы, предохранительного и грузового каната, пригруза. Она может быть смонтирована на колесной раме для удобного перемещения по периметру рабочей площадки. Стрела крана разборная. Она поворачивается на 380 градусов вокруг своей оси. Механизм поворота – ручной. Вылет стрелы по горизонтали – 2,7 м. За секунду оборудование поднимает груз со скоростью 0,2 м. Электропривод в системе работает от трехфазной сети напряжением 380В.
Особенности:
- Прямоугольная конфигурация опорной рамы. Техника устойчива.
- Четыре пневматических колеса в базовом комплекте. Кран свободно перемещается по устойчивому, ровному основанию.
- Вертикальная ось, жестко прикрепленная к опорной раме. Оборудование выдерживает большие эксплуатационные и механические нагрузки.
- Износостойкие подшипниковые узлы. Поворот платформы осуществляется с минимальным усилием.
- Регулируемая грузовая стрела. Ее длину можно изменять для адаптации установки под конкретные условия работы.
- Наличие противовесов в базовой комплектации. Они выполнены из бетона, поэтому гарантируют высокую устойчивость оборудования при подъеме, перемещении грузов разного веса.
- Страховочная подвеска с опорными стяжками. Предотвращает аварийное падение грузов при подъеме.
- Грузовая лебедка с большими тягловыми показателями и мощным электродвигателем. Гарантирует высокую скорость подъема.
- Удобное управление со стационарных выключателей и пульта. Наличие кнопочной станции.
Чтобы оформить заказ на Кран Пионер-1000 (380В / без к/г) в ГК «Станкомаш», свяжитесь с менеджерами. Мы предоставляем гарантию на продукцию, доставляем ее по всей РФ.
Сертификаты соответствия международным стандартам и российским требованиям на кран есть.
поделиться
| Технические характеристики продукции | |
| Артикул | 12393 |
| Контргрузы | нет аналогов 10 шт. |
| Наличие колёс | да аналогов 19 шт. |
| Стрела | разборная аналогов 21 шт. |
| Механизм поворота | с руч. пов. стрелы |
| Грузоподъёмность, кг | 1000 аналогов 7 шт. |
| Высота подъёма при установке на земле, м | 6 аналогов 7 шт. |
| Высота подъёма при установке на перекрытии, м | 60 аналогов 15 шт. |
| Вылет по горизонтали, м | 2.7 аналогов 11 шт. |
| Скорость подъёма, м/с | 0.2 аналогов 11 шт. |
| Напряжение, В | 380 аналогов 13 шт. |
| Мощность двигателя подъёма, кВт | 3.0 аналогов 5 шт. |
Завод-изготовитель гарантирует исправную работу оборудования в течении срока указанного в паспорте на изделие, при условии соблюдения потребителем правил эксплуатации и технического обслуживания.
Качество:
Завод-изготовитель гарантирует соответствие оборудования техническим требованиям изложенным в технических условиях или национальном стандарте. Ознакомиться с национальными стандартами на предлагаемую продукцию можно в разделе инжиниринг госты.
Введите параметры груза: Габаритные параметры груза влияют на расчет стоимости его забора/доставки. При расчете, кроме объема и массы груза, укажите его длину/ширину/высоту.
| Длина, м | Ширина, м | Высота, м | Объем, м3 | Масса, кг |
Добавить место
Дополнительные услуги
пломба паллеты страхование ночь Объявленная стоимость груза Просим проверить и указать объявленную стоимость груза
Подъемник «Пионер»: характеристики и области применения
Оборудование работает на трехфазном токе при напряжении 380 В. Эксплуатировать технику можно как в жару (до +40°С), так и в мороз (до -40°С). Максимально допустимая скорость ветра – 12 м/сек., относительная влажность воздуха – 80%. Строительный кран «Пионер» имеет две главные характеристики: грузоподъемность и высота подъема. В зависимости от выноса, который может составить от 2,5 (модель 500) до 4 м (модель 1000), стрела способна достигать 50 м. Грузоподъемность крана «Пионер» б у находится в диапазоне от 0,5 до 1,0 т. Помимо вышеупомянутых модификаций, на рынке есть модель 750 с соответствующей грузоподъемностью. Остальные характеристики – рабочая скорость, размеры, устройство привода и др. – тоже очень важны, но вторичны.
Решив купить кран «Пионер» 1000 / 750 / 500, вы сможете использовать его на самых разных строительных, производственных и торговых объектах. С помощью оборудования можно легко доставить груз на нужный уровень здания или спустить что-то тяжелое вниз. Широкое применение оно нашло в строительстве мостов и энергетических объектов. В производстве его также часто задействуют для проведения монтажных и высотных работ. Подъемный кран «Пионер» всегда востребован на крупных складах и в оптовых магазинах. Техника позволяет существенно сэкономить время при отгрузке больших партий товара.
Кран пионер 1000 технические характеристики — Спецтехника

Кран представляет собой разборную конструкцию удобную для перевозки и монтажа. Для удобства перевозки, под заказ, поставляется с разборной стрелой. Длина элемента стрелы не превышает 3,5м.
|
Кран «Пионер» — это незаменимый механизм в случае проведения строительных, либо ремонтно-строительных работ, которые связаны с подъёмом, а также перемещением разнообразных грузов. Установка данного агрегата осуществляется с лёгкостью на земле, а также на площадках перекрытий сооружений, зданий.Особенности стрелового крана «Пионер» КПМКраны данного типа имеют грузоподъёмность не более одной тонны. Вместе с этим эксплуатационные затраты данного агрегата сведены к минимуму. Модель является довольно компактной. Кран легко собирается и управляется. Минимальным весом контргруза является 750 килограмм.Кран «Пионер» эффективно эксплуатируется в случае температурного режима – 40/+40 градусов. Благодаря этому агрегат можно использовать в районе открытых производственных площадок на протяжении всего года. При этом влажность воздуха должна быть не более восьмидесяти процентов. Скорость ветра должна составлять не больше 12 метров за секунду.Основные характеристики крана «Пионер» КПМУстановленный на земле при нулевой отметке данный агрегат способен поднимать груз:
Как правило, кран устанавливается на крыше строящихся либо построенных зданий для осуществления кровельных работ касающихся подъёма, а также опускания материалов. Агрегаты, имеющие грузоподъемность 500 и 750 килограмм снабжаются механическим поворотом в 380 градусов. Агрегаты, имеющие грузоподъемность 1000 килограмм снабжаются электрическим приводом, благодаря которому управление поворотной частью крана производится оперативно и легко.Кран «Пионер» c грузоподъёмностью 500 килограмм производится в двух вариантах:
Кран «Пионер» с грузоподъёмностью 1000 килограмм производится в двух вариантах:
Модель с грузоподъёмностью в одну тонну обладает тремя положениями вылета стрелы:
С увеличением вылета стрелы грузоподъемность становится меньше. С земли подъёмная высота составляет шесть метров.
|
Стреловой кран «Пионер»
На сегодняшний день компания «GRAS» является одним из крупнейших производителей грузоподъемного оборудования в России.
Стреловой кран «Пионер», аналог крана КЛ-3, стал незаменимым помощником на любой строительной площадке нашей большой страны и пользуется всё большим спросом и популярностью, это обусловлено широким спектром выполняемых им работ и вполне разумной стоимостью данного оборудования.
Данный грузоподъемный механизм позволяет перемещать на строящихся зданиях любые виды грузов: монтажные конструкции, строительный материал и оборудование, а также выполнять грузоподъёмные работы на открытых земляных площадках.
Стрелочный Кран Пионер КЛ-1 — Грузоподъемная техника | Сота-Сталь производство оборудования в Киеве

Краны «Пионер» используются для осуществления механизации погрузочно-разгрузочных и строительно-монтажних работ при сооружениях и зданиях.
Основными элементами конструкции крана «Пионер» являются поворотная рама, стрела, опорная рама, электролебедка и пульт управления. Кран «Пионер» представлен в виде разборной конструкции, что очень удобно при транспортировке и монтаже крана на разных строительных участках.
Прайс-Лист от 01.10.2018 года:
Грузоподъемность до 1 тонны
Цена: 98 000 грн. (с НДС)
(фото может отличатся)
Купить
Грузоподъемность до 1 тонны
Цена: 106 000 грн. (с НДС)
(фото может отличатся)
Купить
Кран «Пионер» можно устанавливать на перекрытиях строящихся зданий, крышах сооружений, в котлованах и т.д. Если кран установлен на перекрытии зданий, то высота подъема ограничивается только длинной троса и емкостью канатоукладчика. При помощи подвесного пульта осуществляется управление краном.
Стреловой кран Пионер — это один из наиболее распространенных кранов применяемых в строительстве. Главными отличиями данного крана являются производительность и грузоподъемность.
Для выполнения грузоподъемных работ на строительных участках, логистических и складских комплексах используют краны «Пионер». Параметры крана «Пионер» регламентируются по ГОСТ 1451-77.Стреловой кран «пионер» можно оснастить как грузоподъемным крюком, так и другими механизмами.
Данный тип кранов выпускается с грузоподъемностью 500, 750, 1000 килограмм, но возможно изготовление кранов с большей грузоподъемностью.
(стационарное исполнение, процесс сборки)
| Фото №1 (Кран Пионер) | Фото №2 (Кран Пионер) | Фото №3 (Кран Пионер) |
Условия эксплуатации Крана Пионер:
Для установки крана допустимым уклоном площадки является 3°.Допустимая скорость ветра 14 м/с для рабочего состояния либо 33 м/с для нерабочего состояния.
Температура окружающей среды -40° С до +40° С .
Наше производственное предприятие «Сота-Сталь» производит и разрабатывает почти все модификации кранов «Пионер» согласно регламенту ГОСТ 1451-77, как стандартные проекты, так и по заказу клиентов.
Возможно производство кранов «Пионер» с механическим или ручным поворотом крана. Также кран по заказу можно изготовить с разборной стрелой. Ходовая рама может быть представлена в стационарном исполнении либо оборудована колесами.
Цены, наличие, сроки изготовления и условия поставки кранов «Пионер» Вы можете узнать у наших менеджеров. Телефоны отдела продаж находятся в шапке сайта.
Технические характеристики Крана Пионер КЛ-1
| Наименование | Параметры |
| Грузоподъемность: | 1 тонна |
| Высота: | 4 м. |
| Максимальная грузоподъемность на вылете 2,5 метра при двухкратной запасовке: | 1,0 тонны |
| Максимальная грузоподъемность на вылете 3,0 метра при двухкратной запасовке: | 0,8 тонны |
| Максимальная грузоподъемность на вылете 4,0 метра при двухкратной запасовке: | 0,5 тонны |
| Максимальный радиус поворотной платформы: | 2 метра. |
| Скорость поворота платформы: | 1,88 об/мин |
| Максимальная глубина опускания крюка при однократной запасовке: | 100 метров |
| Максимальная глубина опускания крюка при двукратной запасовке: | 50 метров |
| Опорный контур: | 2х2 метра |
| Максимальная скорость подъема (опускания) груза при однократной запасовке: | 44,4 м/мин. |
| Максимальная скорость подъема (опускания) груза при двукратной запасовке: | 22,2 м/мин. |
| Угол поворота платформы: | 360 град. |
| Привод поворота платформы: | ручной |
Противовесы в комплект поставки не входят, комплектация производится за дополнительную плату.
Кран «Пионер» удобен в эксплуатации, может работать в комплекте со строительным оборудованием: ящик строительный, бадья для бетона, бетономешалка, и т. д.
Кран Пионер в работе у клиентов:
Телефоны нашего завода:
+38 (044) 232-87-84+38 (050) 086-35-81+38 (067) 884-70-30
Владимир Алексеевич
director@gidropress.com
С этим оборудованием покупают:
- Стропы грузоподъемные канатные
- Стропы грузоподъемные текстильные
- Стропы грузоподъемные цепные
- Комплектующие для строп грузоподъемных
- Скобы такелажные
- Грузовые захваты
- Средства для крепления грузов
- Тали
Приглашаем к сотрудничеству представителя в России и Белоруссии!Поможем с реализацией продукции!
Технические характеристики:
| Показатель | Ед.изм | Значение |
| Грузоподъемность максимальная | кг. | 500 |
| Высота подъема, максимальная: | ||
| – при установке крана на земле | м. | 4,3 |
| – при установке на перекрытии | м. | 50,0 |
| Вылет от оси вращения | м. | 2,42 |
| Скорость подъема | м/мин. | 17 |
| Угол поворота | град. | 360 |
| Габаритные размеры установки в собранном состоянии: | ||
| – длина | мм. | 4140 |
| – ширина | мм. | 1690 |
| – высота | мм. | 5380 |
| Масса без к/г | кг. | 600 |
| Габаритные размеры “базы” для транспортировки: | ||
| – длина | мм. | 2480 |
| – ширина | мм. | 1810 |
| – высота | мм. | 1400 |
| Масса базы | кг. | 530 |
| Габаритные размеры “стрелы” для транспортировки: | ||
| – длина | мм. | 2590 (2шт) |
| – ширина | мм. | 480 |
| – высота | мм. | 200 |
| Масса стрелы | кг. | 70 |
Кран стреловой Пионер-1000 (КЛ-3) на колесах г/п 1000кг, H 50м

Купить в 1 клик
- Страна — РОССИЯ
- Грузоподъемность, кг — 100
- Высота подъема, м — 50
- Скорость подъема, м/мин — 11,8
- Вылет стрелы, м — 4
- Напряжение, В — 380
- Мощность, кВт — 4,75
- Вес крана/контргрузов, кг — 910/890
- Страна — РОССИЯ
- Грузоподъемность, кг — 100
- Высота подъема, м — 50
- Скорость подъема, м/мин — 11,8
- Вылет стрелы, м — 4
- Напряжение, В — 380
- Мощность, кВт — 4,75
- Вес крана/контргрузов, кг — 910/890
Кран стреловой Пионер-1000 (КЛ-3) на колесах предназначен для перемещения и подъема необходимого груза при проведении строительных и ремонтных работ на необходимую высоту. Кран поставляется в разобранном виде.
Эксплуатация крана «Пионер» любой грузоподъемности не требует серьезных вложений. Это оборудование чрезвычайно экономично в плане стоимости ремонта, расходных материалов, запчастей. Управление краном не потребует ни переобучения, ни прохождения какой-либо спецподготовки.
Пионер-1000 можно эксплуатировать, установив на крыше здания (кран на крышу). Это на порядок увеличивает высоту, на которую он способен поднимать грузы. Если модель «Пионер» 1000 кг может поднять груз на 6 метров, а модели «Пионер» 500 кг и «Пионер» 750 кг – на 4,5 метра, то установив эти краны на крыше здания, можно поднимать грузы на 50 метров.

- Все операции выполняются просто и оперативно. Это обеспечивается работой электропривода (двигатель, редуктор, лебедка).
- Краном можно управлять при помощи выносного пульта.
- Кран имеет функцию электроповорота стрелы.
- Кран способен менять угол наклона стрелы, увеличивая при этом вылет стрелы, но несколько сокращая грузоподъемность.
- Возможность транспортировать спецтехнику в разобранном виде.
- Расходы на обслуживание минимальны.
- Возможность работы с оборудованием без специальной подготовки.
- Система безопасности крана включает ограничители, фиксирующие положение крюка, что исключает риск срыва груза, и систему конечных выключателей.
Сам себе мастер
Многие хозяева дач или частных домиков сами мастерят подъемные краны. Это очень удобно, так как каждый механизм (будь то незамысловатый моторчик или полноценный гидравлический привод) будет настроен и подлажен под смастерившего его человека. Кроме того, такой механизм помогает не только переносить тяжелые монолитные блоки, но и доставлять легкие грузы, такие как , на верх постройки.
Увы, но применить гидравлику к своему творению вряд ли удастся. Зато получится заменить ее не менее достойной самодельной грузоподъёмной машиной не слишком тяжелой в использовании.
У многих наверняка может возникнуть вполне адекватный вопрос «Где взять детали?», ответ будет весьма короткий и однозначный – на свалке. Если отодвинуть свою врожденную брезгливость на второй план, и прогуляться по многим достопримечательным свалкам родного края, то можно найти массу полезных на стройке вещей.
Итак, для того, чтобы создать кран Пионер своими руками, первое, что необходимо сделать – это найти двутавр и прямоугольную трубу. Сразу, оговаривается условие, что двутавр должен свободно входить в трубу. Он ставится на скользящие направляющие, и таким образом, получается телескопический узел.
Для того, чтобы кран, наконец, смог функционировать, надо оснастить его определенными тросами самого минимального диаметра. На них уже придется потратиться в профильном строительном магазине (хотя, возможно, вам также повезет найти их на свалке). Можно использовать швеллер, как материал сваривания опорной и поворотной рам. Именно швеллер дает возможность хорошей фиксации крана на поверхности. Обычно, кровля объекта, который строится и является этой поверхностью.
Чтобы работа с машиной прошла без эксцессов, а также, чтобы обезопасить себя, необходимо сварить площадку для балласта прямоугольной формы.
Будет достаточно одного фундаментного блока, для поднятия груза весом в пол тонны. Для запуска подъемного процесса можно приобрести электромотор в специальном магазине, а после соединить с лебедкой от УАЗика.
Подключение электромеханизмов
Чтобы подъёмный механизм запустить электрически, придётся воспользоваться услугами электрика. Сама процедура подключения не слишком сложная, но все же ради собственной безопасности стоит довериться человеку, имевшему опыт работы с электричеством.
После этого, кран Пионер своими руками готов к эксплуатации.
2 Схемы компоновки круглошлифовальных агрегатов
Вариант базирования и вид шлифования определяют особенности компоновки станочного оборудования. Наиболее распространены следующие схемы компоновки круглошлифовальных установок:
- патронная с двумя либо одним столом;
- центровая с двумя или одним столом;
- бесцентровая с неподвижными башмаками, с подвижным и неподвижным ножом.
Важнейшее отличие компоновки агрегатов с бесцентровым методом базирования от других вариантов состоит в том, что опорный нож в данном случае монтируется на салазках бабки (ведущей) либо непосредственно на станине. Если имеет место установка на салазки, нож передвигается и совместно с ведущим кругом, и относительно его оси. Бабка при этом по отношению к станине делается неподвижной.
Агрегаты с ножом неподвижного типа часто встраивают в автоматические производственные линии. Такие станки дают гарантию постоянства оси заготовки при любом состоянии шлифовального (алмазного) круга. При его износе нет необходимости выполнять регулировку транспортных механизмов агрегата.
Но станки с неподвижными ножами, к сожалению, имеют достаточно сложную конструкцию, обусловленную наличием устройств, передвигающих бабки, а также снижением показателя жесткости всей конструкции в целом и шлифовальной бабки в частности. Станочное же оборудование с неподвижной бабкой характеризуется более высокой жесткостью и более скромными габаритами. Подобная компоновка оптимальна для обработки деталей с широким диапазоном регулировки.
Важно Лучшие мотоблоки Huter: технические характеристики, навесное оборудование, отзывы владельцев
Стреловой кран Пионер

Кран стреловой Пионер
предназначен для подъема различных грузов массой до 500 кг при строительстве и ремонте зданий и сооружений. Самыми популярными и распространенными являются краны Пионер, так как они имеют высокую степень производительности и грузоподъемности, более того, они отличаются особой надежностью.
Краны Пионер станут Вашими незаменимыми помощниками, если Вы планируете заняться строительством здания, в особенности, здания с малым числом этажей. предлагает Вашему вниманию широкий выбор кранов Пионер, грузоподъемность которых варьируется от 500 до 1000 кг. Мы предлагаем аренду крана Пионер.
Краны пионер переставные используются для перемещения и подъема грузов при строительстве жилых домов, магазинов, развлекательных комплексов, при проведении работ по ремонту или отделке. Краны пионер переставные могут быть установлены как на землю, так и на перекрытия зданий.
Особенности крана стрелового Пионер:
— допустимая скорость ветра: при работе — 14 м/с, для нерабочего состояния — 33 м/с (эксплуатация в I-V ветровых районах по ГОСТ 1451-77) — климатическое исполнение «У» категории I по ГОСТ 15150-69 (при температуре окружающего воздуха от -40°С до +40°С). — поставляется без противовесов.
Пионер-1000
Этот вариант исполнения стрелового крана — усовершенствованная спецтехника, имеющая несколько функций. Грузоподъемность ее — 1 т. В ней все механизмы функционируют на электрической тяге, поэтому управление установкой более легкое. Стрела для оборудования выпускается в нескольких вариантах исполнения: 2,5, 3 и 4 м.

Одновременно с увеличением ее длины снижаются некоторые технические параметры:
- Когда вылет стрелы 2,5 м, она способна поднимать грузы лишь на высоту 6,2 м при заявленной в паспорте грузоподъемности.
- Если установлена трехметровая стрела, установка может поднять на 6 м груз в 0,8 т.
- При четырехметровом вылете вес груза не может превышать 0,5 т, а высота его перемещения — 5,3 м.
- Для наземной установки максимальный подъем груза возможен на уровень в 6 м.
Поднимаемый вес фиксируется к стреле стяжками. Такие консольные краны выпускаются в виде переставных устройств либо они передвигаются самостоятельно на колесах. К поворотной платформе подъемника, смонтированного стационарно, крепятся специальные упоры. Они регулируют у оборудования угол его наклона, благодаря чему происходит предотвращение возможности запрокидывания крана.
Для передвижной конструкции изготовитель рекомендует сооружать рельсы, чтобы по ним выполнять перемещение агрегата. Рабочая скорость с грузом способна достигать значения 11,8 м/мин.
Если сравнивать такую модель с наиболее простой, где контргрузы на раму навешивают, здесь их 15 (каждый имеет массу в 48 кг), и они помещены внутрь специально оборудованного на платформе бокса.
Переносные легкие краны
Небольшая масса, возможность сборки крана и разборки на секции, которые, можно доставлять в труднодоступные места на строительном объекте делает кран хорошим помощником при подъеме строительных материалов.
Консольно-балочный кран (рис.5.6.1) предназначен для подъема и подачи вовнутрь здания через дверные и оконные проемы различных строительных материалов.
Рис. 5.6.1 Переносной легкий консольный кран
Кран состоит из вертикальной телескопической трубчатой стойки 5 с опорными башмаками 1 и 6, балочной стрелы 9 с грузовой кареткой 8, механизмов передвижения каретки и подъема груза. Телескопическая стойка позволяет установить кран в помещениях различной высоты.
Она выполнена из двух секций: основной (неподвижной) и выдвижной. К основной секции стойки шарнирно крепится балочная стрела, удерживаемая в рабочем положении жесткими тягами 7. По нижним полкам стрелы на опорных роликах передвигается грузовая каретка 8.
Механизм передвижения каретки состоит из тягового каната 4, направляющих блоков и ручной лебедки 3. Тяговый канат, навиваемый на барабан лебедки, огибает направляющие блоки и двумя свободными концами крепится к каретке с противоположных сторон.
Вращением рукоятки привода каретку передвигают вдоль стрелы.
Максимальная грузоподъемность консольно-балочных кранов 0,1-0,2т, влет стрелы до 3 м, канатоемкость барабана 40-70 м. Кран КОР-200 (фото 5.6.1).
Фото 5.6.1 Кран КОР – 200 г. Саратов. Кран “в окно” КОР-200 с лебедкой электрической ТЛ-12Б, рассчитанной для работы в невзрывоопасной окружающей среде. Кран устанавливается в оконном проеме. Подъем и опускание строительных грузов весом 200 кг. Кран КОР-200 управляется подвесным кнопочным пультом. Не требует контргрузов.
Технические характеристики крана КОР-200
| Грузоподъёмность, кг | 200 |
| Высота подъёма, м | 200 |
| Угол поворота относительно вертикальной осиотносительно исходного (среднего) положения, град. | 100 |
| Скорость подъёма, м/сек | 0,24 |
| Вылет стрелы наибольший, мм | 1260 |
| Способ управления: | при помощи поста управления |
| Масса крана без лебёдки, кг | 45 |
| Питание V; частота, Гц | 220 / 380; 50 |
Консольно-балочный кран
Максимальная грузоподъёмность консольно-балочных кранов типа «Пионер» 0,5т-1т вылет стрелы до 3 м, канатоемкость барабана 40-70 м. Стреловой полноповоротный переносной кран (рис. 5.6.2)
Рис. 5.6.2 Стреловой полноповоротный переносной кран
Кран состоит из основания с салазками 1, поворотной платформы 3, трубчатой стрелы 9, механизма подъема груза и системы управления. В центре основания установлен трубчатый стакан 10, в который вставлен шкворень поворотной платформы. На консоли поворотной платформы размещены грузовая лебедка 5 и противовес 2.
Спереди к поворотной платформе шарнирно крепится трубчатая стрела, удерживаемая в рабочем положении оттяжками 4. Изменения вылета стрелы производится путем изменения длины оттяжек. Механизм подъема груза состоит из реверсивной червячной лебедки 5 с приборами управления, грузового каната 6 и крюковой обоймы 8.
Поворот платформы и передвижение крана производятся вручную. Фото 5.6.2 крана “Пионер”.
Фото 5.6.2 Консольно-балочный кран КП-1000 “Пионер”
Технические характеристики крана “Пионер”
| Грузоподъемность, кг | 500 | 750 | 1000 |
| при установке на земле, м | 4,5 | 4,5 | 6 |
| при установке на перекрытие, м | до 50 | до 50 | |
| Скорость подъема, м/с | 0,2 до 50(100) | 0,14 | 0,74 |
| Мощность привода, кВт | 4,0 | 4,0 | 4.25 |
| Габаритные размеры, м | 4,2 х 1,78 х 5,4 | 4,28 х1,7х5,4 | 4,5 х 2,0 х 6,0 |
| Масса без к/г, кг | 480 | 480 | 900 |
| Масса полная, кг | 910 | 921 | 1790 |
| Диаметр каната, мм | 6,9 | 6,9 | 12 |
Мобильный станок для резки пенопласта
А тем, кто утепляет дом пенопластом, придется кстати другая форумчанская самоделка– станок для резки пенопласта, позволяющий отрезать куски необходимого размера просто и быстро, не мучаясь с ножовкой и линейкой.
Пользователь нашего форума ОлегЛьвович
для изготовления мобильного станка использовал деревянную рейку 25×25 мм длинной 1,3 метра, нихромовую проволоку сечением 1 мм, пружину, две стальных полосы 20×4 мм, трансформатор 220/36В и провод 15-20 метров.
На FORUMHOUSE форумчанин делитсясхемой устройства самодельного станка:

В отличие от стационарных станков для резки, данное устройство можно свободно перемещать по лесам, и резать пенопласт прямо на месте. При этом, лист можно распустить не только по длине, но и по толщине – для этого к ППС гвоздями дополнительно крепят два профиля. По словам форумчанина, себестоимость мобильного станка составляет 800-1000 рублей, и даже при интенсивной эксплуатации он будет верой и правдой служить несколько строительных сезонов подряд.
Другие примеры станков для резки пенопласта, в том числе, стационарных – в этой теме.





































